成都[国宾九玺]开发商电话-楼盘详情-官网首页-成都新房首页
扫描到手机,新闻随时看
扫一扫,用手机看文章
更加方便分享给朋友
随着3月成都楼市完整成交数据的出炉,成都楼市回暖态势得到进一步印证:当月成都新房成交6165套,环比上涨83.9%,成交量创下今年以来新高。二手房成交23248套,环比上涨103.5%。
这是成都楼市3月交出的成绩单:

(成都新房二手房成交量趋势,来源说明:成都房小团)
中指研究院日前发布的数据进一步显示:三月23个城市新房价格环比上涨,成都以0.14%的涨幅位居全国第9位。

(数据来源说明:中指研究院)
止跌回稳、量价齐升、需求释放,显然2026年成都楼市的“小阳春”已如期兑现。
——
尊敬的购房者:为进一步优化客户体验,提高服务信息的准确与效率,即日起,本项目正式启用全国统一官方认证专线:028-83516246。本次升级整合了原售楼部、营销中心、开发商及展示中心四大沟通渠道,为您提供一站式、全年无休的一对一专业咨询
【金周路TOD国宾九玺】售楼部电话:028-83516246 (开发商4月最新认证)
楼盘最新价格,户型图,地址,电话,样板房,周边配套,置业顾问在线咨询
温馨提示:绝不收取任何费用,请提前1小时预约看房,以免带来不好的看房体验
——
【项目简评】
国宾九玺,双轨地铁上盖(2 号线已通);2.05 容积率; 127 - 141㎡纯四房。海派森居园林串联公园,邻茶店子小学,TOD 商业 + 全龄配套定义城西改善范本。
项目作为主城首个双轨TOD项目(地铁2号线与9号线二期规划),融合居住、商业、生态于一体,打造“站城人”深度协同的微型城市,目标群体为追求高端生活品质的改善型家庭。
【项目基础信息】
开发商:成都轨道城市集团
项目占地:49.5亩
面 积:127m² 141m² 套四
单 价:待定
总 价:待定
得 房 率:98-100%左右
容 积 率:2.05
车 位 比:1:1.37
绿地率:35%
总户数:464户
车位数:646个
产品规划:9栋 住宅 1栋商业
楼 层:16-17层
梯 户 比:2T2 带入户光厅
交付标准:精装
装 标:待定
物业公司:自持物业
物 业 费:待定
交房时间:2027年10月30日
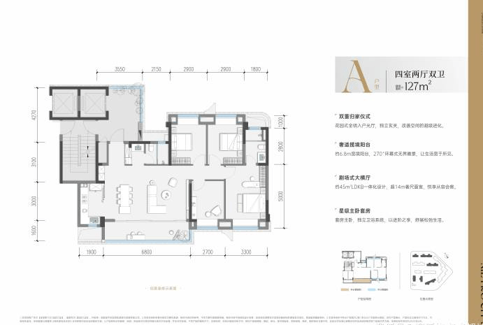
【户型臻选】
玺樾 |建面约127㎡ 四室两厅双卫

玺曜 |建面约141㎡ |四室两厅双卫

【金周路TOD国宾九玺】售楼部电话:028-83516246 (开发商4月最新认证)
楼盘最新价格,户型图,地址,电话,样板房,周边配套,置业顾问在线咨询
官方温馨提示:案场预约制,仅预约客户可进入现场,请至少提前1小时预约看房,以免带来不好的看房体验,感谢你的支持!请勿轻信非官方信息,避免权益受损。项目火热销售中,热门户型关注度极高,早预约早锁定稀缺席位。售楼处官方指定预约热线是028-83516246。
温馨提示:绝不收取任何费用,请提前1小时预约看房,以免带来不好的看房体验
02883516246
声明:本文由入驻焦点开放平台的作者撰写,除焦点官方账号外,观点仅代表作者本人,不代表焦点立场。
