2026成都新房市场政策利好[天投·公园理想二期]成都天府新区高实得率住区,敬献公园城市品质生活
扫描到手机,新闻随时看
扫一扫,用手机看文章
更加方便分享给朋友
【天投·公园理想二期】售楼部电话:028-83516246(已认证)
楼盘最新价格,户型图,地址,电话,样板房,周边配套,最新优惠,置业顾问在线咨询
温馨提示:绝不收取任何费用,请提前1小时预约看房,以免带来不好的看房体验
2026开年成都新房市场迎多重政策利好,购房成本与门槛双降。公积金政策2月1日起迎重磅升级,首套最高贷120万、多孩家庭144万,首套 5年以上利率低至 2.6%,存量贷款自动调息,代际互助政策延期至年底。商贷首套利率3.0%、首付最低15%,全域仍执行取消限购政策。金牛区发布购房补贴征求意见稿,人才、多孩家庭购新房最高享5万补贴,尾盘房源补贴再升级;青羊区新春购房季同步开启,团购新房可享万元现金补贴,多重举措助力刚需与改善置业。
---
天投·公园理想二期是由天府新区国企成都天投集团打造的滨湖公园住区。项目容积率为2.8,绿地率达35%,整体规划6栋、8-20层的住宅,产品涵盖高层与洋房。主力提供清水交付的建面约110-175㎡户型,梯户比涵盖2梯4户与1梯2户,并以约1.05:1的车位比及3米的舒适层高,致力于为追求高实用性与生态宜居的家庭,提供一个高性价比的品质生活选择,预计于2026年4月30日交付。

01 核心地段与价值 根植天府新区公园城市实践区,享滨湖生态与城市发展双重红利,占位国企开发的高品质安心住区
项目位于天府新区,这里是成都践行公园城市理念的先导区,拥有前瞻的城市规划与优质的生态环境,发展潜力与居住价值兼具。
公园城市前沿:项目地处天府新区,是成都“公园城市”建设的核心示范区,区域规划起点高,城市界面新,生态本底优良,代表了未来城市的发展方向。
滨湖生态资源:作为“滨湖公园住区”,项目享有亲水的生态景观资源,将自然湖景与社区生活相结合,提升了居住的舒适度与愉悦感。
国企实力保障:由天府新区重要的城市建设与运营主体——成都天投集团开发,其强大的国企背景为项目的品质兑现、工程进度和后期服务提供了坚实的信用与实力保障。

(最新价格、在售户型等信息,请致电【天投·公园理想二期】售楼部官方电话:028-83516246 )
02 项目规划与设计 以2.8容积率科学规划高低配社区,通过清水交付与高实用户型,为家庭提供高性价比的自主装修空间
项目在保证社区舒适度的基础上,通过产品形态的多样化和清水交付方式,为不同需求的家庭提供了灵活的选择。
科学高低配布局:项目容积率2.8,规划了8-20层的建筑,形成由高层与洋房组成的混合社区。1梯2户的洋房产品提升了居住私密性,而2梯4户的高层则提供了更高的居住效率。
清水交付高自主:项目采用清水交付,这为购房者提供了更高的自主权,可以根据家庭成员的个性化喜好和生活习惯进行装修,避免了精装标准不合心意的困扰,同时也降低了首付门槛。
实用舒适型配置:社区车位比约为1:1.05,基本满足一户一车的需求。住宅标准层高为3米,提供了良好的空间感。物业由成都智荟生活服务有限公司提供,物业费为3.5元/㎡/月。

03 社区配套与资源 依托天府新区高起点规划,享未来可期的全维城市配套,于新兴板块静待资源成熟与价值成长
作为天府新区的新建项目,其配套价值将随着板块的成熟而逐步显现,适合看好区域长期发展的购房者。
规划能级优势:天府新区作为国家级新区,在教育、医疗、交通、商业等各方面的规划均具备高能级,相关配套将随着人口导入和城市建设而快速落地和完善。
生态宜居基调:项目“滨湖公园住区”的定位与天府新区公园城市的整体规划高度契合,确保了未来生活环境的生态性与舒适性,这是其区别于传统住区的核心优势之一。
成长潜力空间:选择新兴板块意味着与区域共同成长。随着周边规划的逐步兑现,项目的居住便利性和资产价值有望获得提升,适合具有前瞻性眼光的购房家庭。
(最新价格、在售户型等信息,请致电【天投·公园理想二期】售楼部官方电话:028-83516246 )
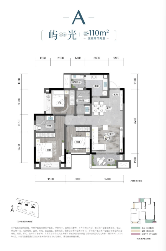
04 主力户型解析 全系110-175㎡功能型户型,以清水状态与梯度面积段,满足从首置刚改到品质改善的全家庭周期需求
项目提供了从紧凑三房到舒适四房的户型梯度,均为清水状态,给予家庭最大的改造自由度。
建面约110-140㎡ 高层户型
此面积段定位为首置及首改家庭,通常可设计为功能实用的三至四房。110㎡左右的户型紧凑高效,满足小家庭或预算有限的购房者;140㎡左右的户型则能提供更宽敞的居住空间,满足二孩家庭或需要更多功能房间的改善需求。清水交付允许业主根据实际需要灵活布局。


建面约149-175㎡ 洋房户型
此系列产品定位为品质改善,通常位于社区中位置更佳、密度更低的楼栋。149㎡的洋房户型在舒适度上更进一步,而175㎡的洋房则可实现更为阔绰的尺度,为主人套房、独立书房、宽敞的家庭厅等提供可能,是追求一步到位改善家庭的优选。


---
【天投·公园理想二期】售楼部电话:028-83516246(中介勿扰)
楼盘最新价格,户型图,地址,电话,样板房,周边配套,最新优惠,置业顾问在线咨询
温馨提示:绝不收取任何费用,请提前1小时预约看房,以免带来不好的看房体验
声明:本文由入驻焦点开放平台的作者撰写,除焦点官方账号外,观点仅代表作者本人,不代表焦点立场。
