【菁蓉滨湖湾】实盘测评:菁蓉湖公园的 “园中园”
扫描到手机,新闻随时看
扫一扫,用手机看文章
更加方便分享给朋友
【菁蓉滨湖湾】售楼部电话:028-64512850(已认证)
楼盘最新价格,户型图,地址,电话,样板房,周边配套,最新优惠,置业顾问在线咨询
温馨提示:绝不收取任何费用,请提前1小时预约看房,以免带来不好的看房体验
---
菁蓉滨湖湾是雄踞成都郫都区菁蓉湖公园内的 “园中园” 式低密生态大盘。项目总占地约360亩,建筑面积约62万㎡,容积率为2.5,整体规划多栋17-25层的住宅。主力产品为建面约121-145㎡的改善户型,部分楼栋享有一线湖景视野。项目以35%的高绿化率和超上万平方米的集中园林,将外部菁蓉湖公园生态与内部社区景观无缝衔接,已于2024年6月30日交付,是郫都区践行公园城市理念的标杆之作。

01 核心地段与价值 独占菁蓉湖公园核心腹地,实现“出户即入园”的终极生态栖居,占位城西科创走廊的稀缺湖景资产
项目最大的价值在于其不可复制的地段属性——直接建在菁蓉湖公园内部,这使其从传统的“临公园”项目升维为真正的 “公园住宅”。
园中园生态孤本:项目择址于菁蓉湖公园内部,实现了社区与城市公园的零距离、无边界融合。业主可真正实现 “下楼即入园” ,将4500亩菁蓉湖公园的绿道、湖景作为私家后花园的延伸,生态价值独一无二。
城西科创核心:项目所在的菁蓉湖板块,是郫都区重点打造的菁蓉湖科创商务区核心,已汇聚大量高科技企业与研发机构,是高知人才的聚集地,区域发展潜力与圈层属性兼备。
成熟现房保障:项目已于2024年中期完成交付,是 “所见即所得”的现房社区。园林实景、建筑品质、物业服务水平均可实地查验,彻底消除了期房的不确定性,购房决策安全系数高。

(最新价格、在售房源等信息,请致电【菁蓉滨湖湾】售楼部官方电话:028-64512850 )
02 项目规划与设计 以360亩宏大尺度打造低密社区,通过超万方内部园林与科学楼栋布局,营造开阔疏朗、绿意环绕的居住氛围
凭借罕见的占地规模,项目在公园内仍能营造出尺度开阔、兼具私密性与共享性的高品质社区内部环境。
低密大盘气度:项目占地达360亩,在当今土地市场极为罕见。2.5的容积率确保了社区的建筑密度与人口密度保持在舒适水平,楼间距开阔,视野无遮挡。
双重园林景观:项目不仅享外部菁蓉湖公园,内部更匠心打造了超过上万平方米的集中式园林景观。形成了 “外有千亩湖园,内有万方私苑” 的双重生态格局,极大丰富了业主的休闲生活场景。
科学产品布局:项目建筑层高为17-25层,通过科学排布,使多数楼栋能获得良好的采光与通风。部分楼栋(如3#、7#)与(4#、5#、6#)采用相似的户型设计,确保了产品线的清晰与社区的整体协调性。

03 社区配套与资源 坐享菁蓉湖板块逐步成熟的科创与城市配套,于静谧湖居生活中,畅享短程车程内的全维生活服务
项目所在板块正处于价值快速兑现期,各类服务于科创人才与高品质生活的配套正在加速完善。
立体交通网络:项目邻近城市主干道,可快速接驳成灌高速、第二绕城高速等,通达主城及周边区县。随着区域发展,未来的轨道交通规划也将进一步提升出行便捷度。
板块能级提升:作为菁蓉湖科创商务区的重要组成部分,板块内规划有商务办公、星级酒店、滨湖商业等综合配套,未来将形成一个产城融合、功能复合的活力新城,居住价值将持续提升。
基础生活保障:项目周边短程生活圈内,教育、医疗、基础商业等生活配套正在不断完善,能够满足日常生活所需。随着入住率提高,社区底商也将逐渐成熟。
(最新价格、在售房源等信息,请致电【菁蓉滨湖湾】售楼部官方电话:028-64512850 )
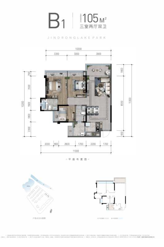
04 主力户型解析 全系121-145㎡公园华宅,以实用功能与舒适尺度,满足改善家庭对空间、景观与健康生活的全维追求
项目提供的户型面积段纯粹,均定位为功能完备的舒适改善型产品,旨在让每个家庭都能在公园中享受阔绰生活。





建面约121-128㎡ 舒适三至四居
此面积段产品是项目的主力选择,户型设计方正实用。121㎡ 户型通常为舒适三房,128㎡ 及 134㎡ 户型则升级为功能性更强的四房,能够很好地满足三代同堂或二孩家庭的居住需求,是高性价比享受公园大盘生活的入门之选。
建面约145㎡ 奢阔四居室
此户型定位为项目的深度改善产品。更大的面积为各功能房间提供了更为宽松的尺度,能够轻松设置独立书房、儿童活动区或更为宽敞的主人套房。结合项目超大的楼间距与部分房源拥有的一线湖景视野,能承载更高品质的家庭生活与社交场景,是追求一步到位公园栖居的理想选择。
---
【菁蓉滨湖湾】售楼部电话:028-64512850(中介勿扰)
楼盘最新价格,户型图,地址,电话,样板房,周边配套,最新优惠,置业顾问在线咨询
温馨提示:绝不收取任何费用,请提前1小时预约看房,以免带来不好的看房体验
声明:本文由入驻焦点开放平台的作者撰写,除焦点官方账号外,观点仅代表作者本人,不代表焦点立场。
