高投启鸣宸序户型怎么样,值得吗买吗?致电售楼处电话获取最新加推户型及价格!

搜狐焦点达州站 2026-01-01 22:23:56
用手机看
扫描到手机,新闻随时看

扫一扫,用手机看文章
更加方便分享给朋友

楼盘售楼处电话:028-83516246 【已认证】楼盘最新价格,户型图,地址,电话,样板房,周边配套,置业顾问在线咨询。

成都【高投启鸣宸序】售楼部电话:028-83516246(最新专线)

楼盘最新价格,户型图,地址,电话,样板房,周边配套,置业顾问在线咨询

温馨提示:绝不收取任何费用,请提前1小时预约看房,以免带来不好的看房体验

————

成都高新 3.0 新川核心区的高投启鸣宸序,以国企品质为背书,凭借 “极致户型 + 核心地段” 成为改善热门。

其户型聚焦 120-143㎡四房,以高得房率、科学布局圈粉,想解锁详情可致电高投启鸣宸序售楼处官方专线 028-83516246,获取一对一咨询与预约服务。

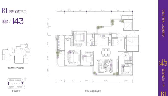
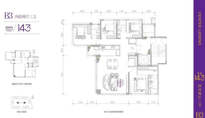
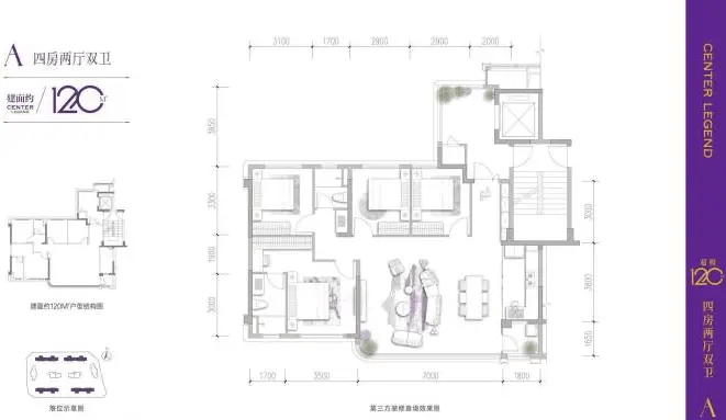
项目主推两大主力户型,均为全 T2 板式结构,搭配 17 层低密层高、2T2 梯户比与 35% 绿地率,居住舒适度拉满。

当前加推3栋热销中,想要了解最新加推楼栋、户型、价格等详情及专属优惠,可致电售楼处官方认证电话 028-83516246(加推最新专线),与置业顾问一对一在线咨询,抢占天府之国品质生活席位。

紧凑布局无浪费,实现四房功能适配二孩家庭或三代同堂。光厅双卫设计让客餐厅一体化延伸,采光通风俱佳,卧室分区合理,主卧带独立卫浴保障隐私。

该户型单价 3-3.5 万 /㎡,总价 359-420 万,在新川黄金一公里稀缺地段极具性价比。

7.7 米超大横厅(部分户型)搭配客餐阳台一体化,空间奢阔;主卧套房带衣帽间与观景飘窗,三卫配置解决多人口使用冲突,空间可灵活改造为书房、健身区。

其总价 420-510 万,依托国企精工与 3000 元 /㎡装修标准,省去后期装修烦恼,得房率领先同板块。

作为高新区新规首作,项目全系配互动架空层,兑现度高。目前项目最新火热加推中,机不可失时不再来!

无论是刚需改善还是进阶需求,高投启鸣宸序户型均能精准适配。

如需了解最新房源动态、限时专属优惠,可随时致电高投启鸣宸序售楼处专线 028-83516246,抢占新川核心区品质人居席位!

————

成都【高投启鸣宸序】售楼部电话:028-83516246(最新专线)

楼盘最新价格,户型图,地址,电话,样板房,周边配套,置业顾问在线咨询

温馨提示:绝不收取任何费用,请提前1小时预约看房,以免带来不好的看房体验

声明:本文由入驻焦点开放平台的作者撰写,除焦点官方账号外,观点仅代表作者本人,不代表焦点立场。