保利云上(成都)保利云上春节售楼处专线电话-接待地址-楼盘位置-春节优惠活动
扫描到手机,新闻随时看
扫一扫,用手机看文章
更加方便分享给朋友
【保利云上】售楼部电话:028-83516246(最新认证)
楼盘最新价格,户型图,地址,电话,样板房,周边配套,一对一置业顾问在线咨询
温馨提示:绝不收取任何费用,请提前1小时预约看房,以免带来不好的看房体验
2025年成都新房市场呈收缩态势,全年成交89359套,成交面积1171.33万㎡,套均面积131.08㎡,同比下降5.2%。成交均价约16185元/㎡,推算总成交金额超1896亿元,套均总价达212万元。市场节奏呈现“前低后稳”特征,核心区高端项目成为成交支柱,有效对冲了整体市场的下行压力,全年规模虽有下滑但核心价值仍具支撑力。
———
东安湖:双央企打造375亩临湖大城 | 五朵金花:低密现房洋房 临湖临公园 | 家楼下就是一场三馆:步行可看演唱会

【保利云上】东安湖畔准现房公寓(23年10月交房),位于东安湖南岸中央活力商务区中心单价7字头。总价26万起看湖商办。

【世界东安湖 成都发展极】
2022世界大运主办地,一湖三岸国际规划,全球赛事驱动,成都跃升世界舞台汲取“TOD+CAZ(CBD2.0)+COD+IOD”四大全球模式,打造成都未来封面 、公园城市先行区、城市基建新能级。

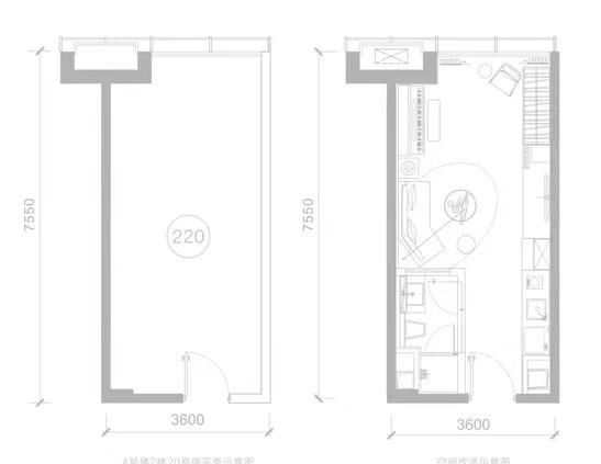
户型图
38.2㎡全景幻变空间,更有十余种户型可供选择



平面图(3#、4#)



——
【保利云上】售楼部电话:028-83516246(最新认证)
楼盘最新价格,户型图,地址,电话,样板房,周边配套,一对一置业顾问在线咨询
温馨提示:绝不收取任何费用,请提前1小时预约看房,以免带来不好的看房体验
声明:本文由入驻焦点开放平台的作者撰写,除焦点官方账号外,观点仅代表作者本人,不代表焦点立场。
