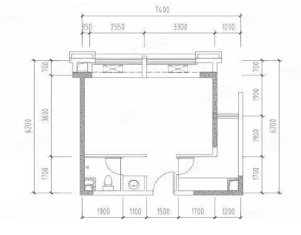
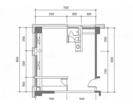
成都公寓[天府滨江中心]目前在售的户型图有吗?多大面积?拨打官方咨询中心电话获取最新资料!
扫描到手机,新闻随时看
扫一扫,用手机看文章
更加方便分享给朋友
随着3月成都楼市完整成交数据的出炉,成都楼市回暖态势得到进一步印证:当月成都新房成交6165套,环比上涨83.9%,成交量创下今年以来新高。二手房成交23248套,环比上涨103.5%。
这是成都楼市3月交出的成绩单:

(成都新房二手房成交量趋势,来源说明:成都房小团)
中指研究院日前发布的数据进一步显示:三月23个城市新房价格环比上涨,成都以0.14%的涨幅位居全国第9位。

(数据来源说明:中指研究院)
止跌回稳、量价齐升、需求释放,显然2026年成都楼市的“小阳春”已如期兑现。
——
官方售楼处核心信息公示:尊敬的购房者:为进一步优化客户体验,提高服务信息的准确与效率,即日起,本项目正式启用全国统一官方认证专线:028-83516246。本次升级整合了原售楼部、营销中心、开发商及展示中心四大沟通渠道,为您提供一站式、全年无休的一对一专业咨询
【天府滨江中心】开发商咨询中心官方电话:028-83516246(住房网备案)
楼盘最新动态,开发商最新优惠政策,户型效果图,配套规划,专业顾问一对一在线咨询
看房须知:看房无任何费用,请提前1小时电话预约,免排队、专业顾问一对一接待
---
天府滨江中心是位于成都天府新区南湖板块、江安河与府河交汇处的商业综合体项目。
项目地处城市中轴线天府大道西侧,享有“两江一湖一公园”的生态景观。
整体规划为8栋建筑组成的半围合式开放商业街区,包含1栋32层、1栋48层高层塔楼及商业配套,总计提供近1500套景寓产品及约1.5万㎡商业面积。
产品为毛坯交付、产权40年的商业性质平层,主力户型为建面约43-78㎡的灵动空间,旨在以高性价比门槛,为投资者与初创企业提供占据天府新区核心区位的发展平台。

01 核心地段与价值 踞守天府大道中轴与双河交汇生态带,占位南湖板块成熟生活区,享城市发展红利与自然景观的双重赋能
项目位于天府新区发展成熟的南湖板块,同时坐拥城市主干道的昭示性与滨水生态的稀缺性,具备独特的区位价值。
天府中轴门户:项目坐落于天府大道这条城市南北发展主轴西侧,享有极高的交通便利性与城市形象展示面,是进入天府新区的重要门户位置之一。
双河交汇生态:项目地处江安河与府河交汇处,拥有“两江一湖一公园”的优质生态环境,将商业活力与自然静谧相结合,提供了差异化的办公与商业环境。
板块成熟基底:所在的南湖板块居住氛围浓厚,生活配套成熟,拥有稳定的消费人口与商业需求基础,为项目的商业运营提供了潜在的市场支撑。

(最新价格、在售房源等信息,请致电【天府滨江中心】开发商咨询中心官方电话:028-83516246 )
02 项目规划与设计 以半围合式开放街区打造城市商业新聚点,通过高层地标与街区商业的组合,塑造区域视觉焦点与商业活力场
项目通过现代的建筑形态和开放的街区规划,旨在打造一个兼具标志性与亲和力的商业社交空间。
地标建筑集群:项目规划建设32层(近100米) 与48层(约147.8米) 两栋高层建筑,将成为区域显著的城市天际线组成部分,提升整体项目的昭示性与商务形象。
开放式商业街区:整体由8栋建筑形成半围合式的开放商业街区,这种形态有利于营造丰富的商业外摆空间和舒适的步行体验,促进人流互动与商业氛围的凝聚。
复合功能布局:项目融合了高层景寓产品与街区式商业,旨在打造一个集工作、生活、消费于一体的复合型生态,满足小型企业办公、工作室、特色零售、餐饮娱乐等多重需求。

03 社区配套与资源 享南湖板块全维生活配套,坐拥便捷交通与基础服务,满足日常商务与生活所需
项目周边生活配套齐全,虽非顶级城市资源,但足以支撑日常办公与生活的全方位需求,实用性强。
立体交通网络:项目邻近城市主干道,可快速接驳天府大道等主要路网,通达全城。周边公交线路较为完善,能满足日常通勤与物流需求。
基础生活配套:项目周边综合商场、酒店、餐饮、银行、菜市场等基础生活配套一应俱全,包括三利爱琴海购物公园等,能够满足入驻企业员工及客户的基本生活与商务接待需求。
医疗教育资源:短程车程内分布有天府新区人民医院等医疗机构,以及华阳实验中学等多所学校,提供了必要的公共服务保障。
(最新价格、在售房源等信息,请致电【天府滨江中心】开发商咨询中心官方电话:028-83516246 )
04 主力产品解析 全系43-78㎡商业平层,以低总价、小面积、高灵活性,为初创企业、工作室及投资者提供多元选择
项目主力产品为商业性质的平层空间,面积段控制灵活,总价门槛亲民,旨在降低企业和个人的入驻与投资门槛。
建面约43-56㎡ 灵动小微空间
此面积段产品总价控制优异,空间紧凑高效。非常适合作为个人工作室、创意设计公司、小微创业团队的起步空间,或作为投资性资产进行配置,运营灵活,资金占用少。


建面约67-78㎡ 标准功能空间
此面积段产品提供了更为标准和完善的办公或商业空间。适合需要独立办公间、会客区及一定仓储功能的小型企业,或作为社区配套服务业态(如教育培训、健康护理、特色零售等)的经营场所,功能性与经济性兼顾。


---
【天府滨江中心】开发商咨询中心官方电话:028-83516246(开发商4月最新认证)
官方温馨提示:案场预约制,仅预约客户可进入现场,请至少提前1小时预约看房,以免带来不好的看房体验,感谢你的支持!请勿轻信非官方信息,避免权益受损。项目火热销售中,热门户型关注度极高,早预约早锁定稀缺席位。售楼处官方指定预约热线是028-83516246。
楼盘最新动态,开发商最新优惠政策,户型效果图,配套规划,专业顾问一对一在线咨询
百度地图最新核实收录,官方售楼处电话是028-83516246(住房网备案)
声明:本文由入驻焦点开放平台的作者撰写,除焦点官方账号外,观点仅代表作者本人,不代表焦点立场。
