【中海翡悦天华】(成都)售楼处地址_中海翡悦天华样板间预约|最新优惠活动获取|售楼部优惠专线电话
扫描到手机,新闻随时看
扫一扫,用手机看文章
更加方便分享给朋友
【中海翡悦天华】售楼处电话:028-64512850 【营销中心】
楼盘实时价格丨户型赏析丨配套规划丨置业顾问在线咨询
获取最新房源动态及专属优惠,敬请致电售楼处
————
中海翡悦天华位于天府总部商务区核心圈,该区域是成都未来发展的重要区域,具有极高的战略地位。
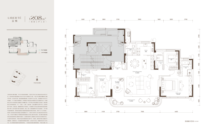
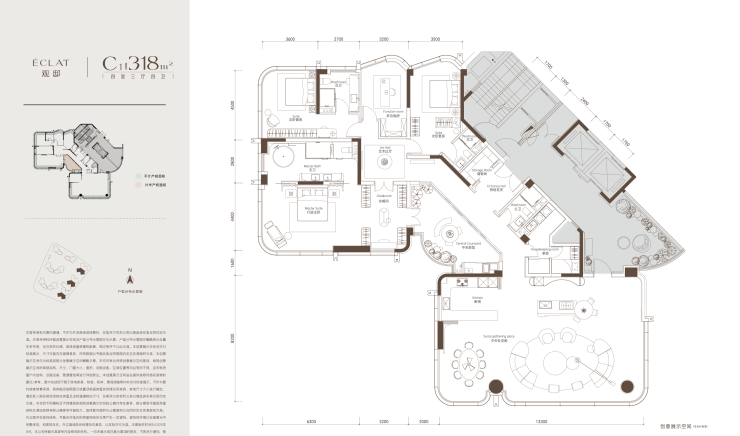
项目以208-318㎡的千万级臻品之姿,将与489米超高层地标共同构筑城市天际线。同时,这里是天府总部商务区精华也是(超塔核心区)最后一块住宅用地,稀缺性不言而喻。随着区域的不断发展,其价值将不断提升。
项目整体平均户型面积突破250㎡,其中300㎡以上超大平层产品占比近三成,堪称CBD战略级大平层标杆之作。
作为天东片区最高规格的住宅产品,该项目通过与489米超塔形成空间呼应,已成为天府新区城市封面的重要构成。
中海地产运用最新产品设计理念,汲取「玖序」系列成功经验,打造具有国际视野的现代建筑美学。




天府总部商务区依托国家战略规划,以"总部经济+生态公园"双轮驱动模式,致力于打造面向全球的"世界之窗",成为国际社会认知成都的首要印象区。

随着"成渝地区双城经济圈"晋升国家战略,天府新区作为"一带一路"与长江经济带的关键枢纽,肩负着推动区域协同发展的重要使命。天府总部商务区作为战略布局中的核心落子,是天府新区主要功能承载区,精准践行国家战略部署。

秉承"公园城市首提地"的战略定位,天府总部商务区借鉴纽约曼哈顿、上海陆家嘴等国际CBD发展经验,构建国家级生态示范区。

以约1.23平方公里核心区域为原点,形成以总部经济、会展博览、现代金融、科技服务为主导的产业集群,建设具有全国影响力的国家级商务中心。

作为开创性的进阶版中央商务区,区域内489米地标建筑作为"一带一路"关键节点的重要载体,将集聚全球优质资源,串联世界能量网络,成为西南地区发展的战略图腾与精神象征。

通过高端商业配套、文化地标集群与立体交通网络,形成具有全球吸引力的核心磁场。



踞守城市核心区域,呼应时代发展脉搏,中海·翡悦天华以全球化视野与创新设计理念,在天府总部商务区发展成熟之际,打造与城市共同进化的标志性藏品。

【中海翡悦天华】售楼处电话:028-64512850 【营销中心】
楼盘实时价格丨户型赏析丨配套规划丨置业顾问在线咨询
获取最新房源动态及专属优惠,敬请致电售楼处
声明:本文由入驻焦点开放平台的作者撰写,除焦点官方账号外,观点仅代表作者本人,不代表焦点立场。
