成都【中海天府合印】售楼处电话_【天投中海天府合印】房价_电话_户型_楼盘详情
扫描到手机,新闻随时看
扫一扫,用手机看文章
更加方便分享给朋友
天投中海天府合印】售楼处电话:028-87788752 【中介勿扰】
楼盘实时价格丨户型赏析丨配套规划丨置业顾问在线咨询
获取最新房源动态及专属优惠,敬请致电售楼处

品牌背书
成都天投集团×中海企业集团
国企央企强强联合,构筑品质双重保障
两大实力企业携手,共筑天府青年理想住区
区位优势
天投中海·天府合印坐落于天府新区核心天府前湾板块,毗邻成熟的天府商务区,北接麓山、西临麓湖等高端住区,占据城市发展黄金区位。作为天府新区核心区收官力作,项目汲取上海前滩、杭州前湾规划精髓,打造"天府森林新绿窗"、"政法服务新高地"、"公园生活新社区"三大功能板块。
区域内规划五大主题公园群落、生态景观廊道及双TOD交通枢纽,以公园城市理念为内核,与CBD商业配套相得益彰,彰显高端居住价值。
设计亮点
国际大师联袂打造,LWK建筑事务所×伯利森景观设计
天府新区稀缺70亩低密社区,营造多元生活场景
约170米景观主轴,勾勒层次丰富的园林空间
独创"甲板式观景平台",实现270°环幕视野
创新风帆式建筑立面,优化采光与观景视野
品质细节
融合国际前沿理念,打造现代都市活力社区
营造星级酒店式归家礼序
约40米星空入户长廊
约6米挑高精装大堂
为城市菁英缔造尊贵生活体验
主力户型
精选三至四房臻品户型
92㎡三房:三面朝阳,南向面宽达9.8米

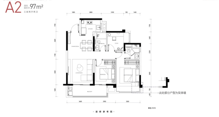
A2户型:97㎡三房两厅双卫
作为项目唯一采用南向阳台封窗设计的户型,在保持公建化外立面统一性的同时,首批次推出专属价格优惠,主力总价约200-210万。
户型设计亮点突出:97㎡实现三房两厅双卫全能布局;9.8米南向面宽,三面采光确保通透性;3.6米客厅与3.3米主卧尺度考究;主卧及书房配备0.7米进深飘窗,拓展实用空间。

D户型:113㎡三房两厅双卫
项目北向主力户型,12.1米超宽面宽实现双面采光。巧妙将次卫及书房置于次要位置,重点打造朝北一体化餐客厅与厨房,通过空间重组营造出130-140㎡的阔绰尺度感。

E户型:133㎡四房两厅双卫

【天投中海天府合印】售楼处电话:028-87788752 【中介勿扰】
楼盘实时价格丨户型赏析丨配套规划丨置业顾问在线咨询
获取最新房源动态及专属优惠,敬请致电售楼处
温馨提示:绝不收取任何费用,请提前1小时预约看房,以免带来不好的看房体验
声明:本文由入驻焦点开放平台的作者撰写,除焦点官方账号外,观点仅代表作者本人,不代表焦点立场。
