【通锦阁】(成都)售楼处地址_通锦阁样板间预约|最新优惠活动获取|售楼部优惠专线电话
扫描到手机,新闻随时看
扫一扫,用手机看文章
更加方便分享给朋友
【通锦阁】售楼部电话:028-64512850(中介勿扰)
最新成交价格,户型图,地址,电话,样板房,周边配套,项目介绍
温馨提示:绝不收取任何费用,请提前1小时预约看房,以免带来不好的看房体验!
————
【通锦阁】是成都青羊区一环内的稀缺现房项目,主打青羊二区优质学区资源,精装均价约3万/㎡,兼具地段与性价比优势。
成都一环内近5年仅出让5宗住宅用地,项目占据其一,周边二手房均价达3.4万-3.8万/㎡,价差明显。
项目预计2025年底交房,国企国投开发,龙湖物业入驻,规避烂尾风险。
项目位于青羊区,一环内、新华大道(通锦桥路)边上、新城市广场商圈范围内。其周边一直没供应,也没有比较具有代表性的次新盘,所以在市场上基本没啥知名度,大家对它的板块区位可能比较陌生,我们就直接用学区来锁定范围——青二片区。
主城核心地段,生活便利度MAX
141-166㎡ 实景准现大宅,告别期房风险,所见即所享!
优质青二学区环绕,为孩子的未来奠定坚实基础。
均价约3万/㎡!主城芯+学区准现房,性价比之选!
机会难得,主城安家、学区一步到位,就在此刻!

整个小区由三栋建筑组成:
•2号楼(17F住宅):2T5户,主力产品为建面约66㎡套一和69㎡套二
•3号楼(26F住宅):2T3户,提供143㎡、170㎡套四大户型
•另有一栋写字楼和沿河商业街

2021年9月,青羊国投拿下这宗通锦桥路地块时,就注定了它的特殊性:占地仅23亩、容积率3.0、自持10%保障性租赁住房,更关键的是——须现房销售。这意味着开发商必须完全建成后才能开盘,资金沉淀周期长达近四年。
这种严苛条件直接导致一个结果:2021年至今青羊二环内仅出让2宗住宅用地,通锦阁是其中之一。
对于青羊二区这样的教育高地而言,新房供应早已断层。近五年区域内主力成交新房不足10个,且多为大户型豪宅。通锦阁的出现,恰好填补了青羊一环内中产改善型住房的空白。
其地段价值不言而喻:项目位于新华大道通锦桥路与饮马河交汇处,正对成都树德中学(宁夏街校区,成都顶级高中,也有很多家长陪读租房,租金市场较为可观),与青二名校,东城根街小学B区步行距离仅约1000米。
根据青羊区教育局划片,通锦阁明确归属青羊二区学区。这意味着业主子女有机会实现:
•小学入读优质名校东城根街小学(建议直接报取其B区,历年基本是100%入读)。
•初中对口“三小联中”树德实验中学(东马棚)、石室联中(陕西街)等顶级名校。
•高中目标直指四七九本部校区。
小户型只有15套,没什么可说的,有需要的可以看看。
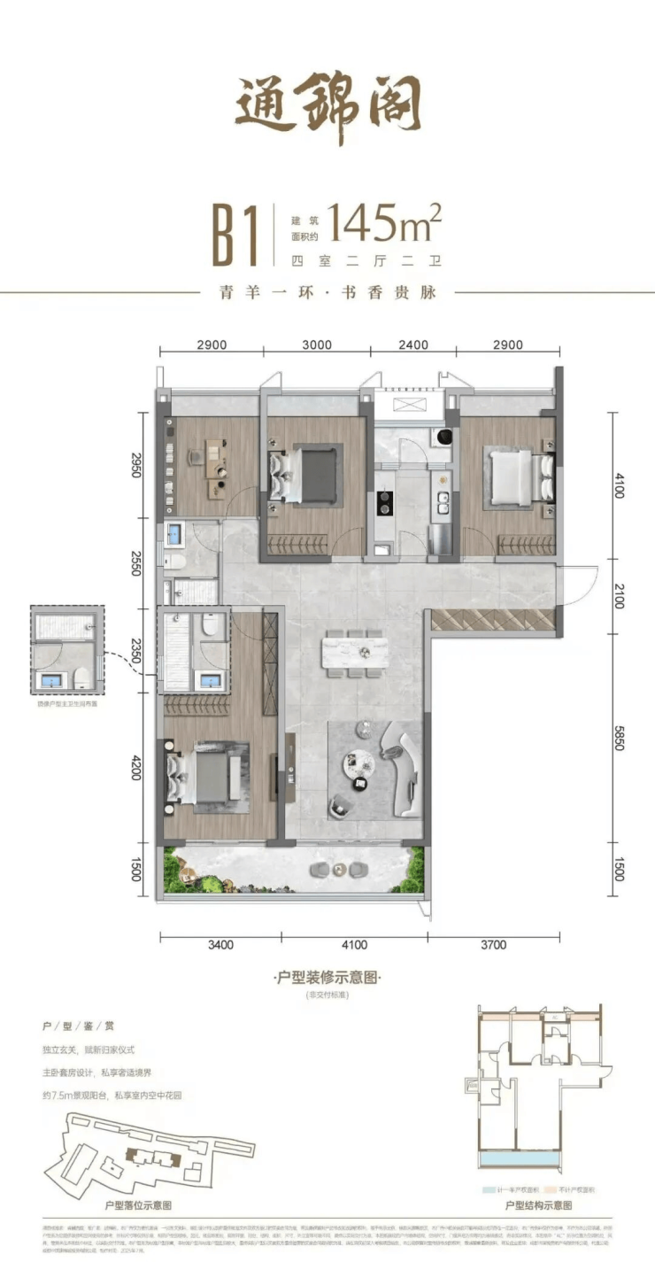
141㎡、145㎡纯竖厅设计,有点过时,但各个房间大小都还可以,功能性基本OK。
166㎡,布局类似早两年110㎡户型的放大版,公共活动空间比较大,可以做“3+1”,但实际改造起来可能会有点麻烦。
以下是项目户型图:





【通锦阁】售楼部电话:028-64512850(中介勿扰)
最新成交价格,户型图,地址,电话,样板房,周边配套,项目介绍
温馨提示:绝不收取任何费用,请提前1小时预约看房,以免带来不好的看房体验!
声明:本文由入驻焦点开放平台的作者撰写,除焦点官方账号外,观点仅代表作者本人,不代表焦点立场。
