【R9栖汇】售楼处电话-最新价格-户型鉴赏-区位讲解-成都科学城创智LOFT,灵动空间敬献高知菁英
扫描到手机,新闻随时看
扫一扫,用手机看文章
更加方便分享给朋友
【R9栖汇】售楼部电话:028-64512850(已认证)
楼盘最新价格,户型图,地址,电话,样板房,周边配套,最新优惠,置业顾问在线咨询
温馨提示:绝不收取任何费用,请提前1小时预约看房,以免带来不好的看房体验
---
R9栖汇是由央企中铁在成都天府新区兴隆湖科学城核心打造的LOFT现房公寓。项目为12层板式小高层,总体量约7784㎡,仅规划154套精致房源。产品为清水或豪装可选的4.2米层高LOFT,主力面积为50-67㎡,梯户比为3梯14户。项目坐拥科学城国家级产业高地与兴隆湖万亩生态,并引入香港知名设计师打造专属美学与700㎡七大主题共享空间,旨在为区域内的科研菁英与高知人群提供一处高品质的职住一体生活场,签约后约3个月即可交付。

01 核心地段与价值 根植西部科学城创新策源地心脏,坐拥国家级科研集群与独角兽岛TOD,占位城市未来发展的绝对战略核心
项目位于成都乃至西南地区的科技创新“大脑”——兴隆湖科学城,这里不仅是公园城市先行区,更是代表国家参与全球科技竞争的战略平台,价值根基深厚。
国家级创新策源:项目所在区域已汇聚国家超算中心、中科院成都分院等23个国家级科研机构,是“基础研究-技术转化”完整创新链的核心承载地,汇聚了数十万高知科技精英。
世界级地标引擎:项目紧邻规划中的独角兽岛,这座由扎哈·哈迪德事务所设计的145万㎡世界级地标,将是科学城唯一TOD,未来将汇集超7万高知办公人群与大型商业中心,驱动区域能级不断跃升。
空铁一体化枢纽:邻近西南最大高铁枢纽——天府新站(明年投用),并与地铁18、19号线交汇,形成年吞吐量1.2亿人次的空铁一体化门户,未来商旅人流与高端资源导入潜力巨大。

(最新价格、在售房源等信息,请致电【R9栖汇】售楼部官方电话:028-64512850 )
02 项目规划与设计 央企品质叠加大师设计,以4.2米LOFT空间与全维共享配套,重新定义科学城高端服务式公寓标准
项目在“硬件”产品力与“软件”服务力上均倾注心力,由央企中铁保障品质,并邀请香港知名设计师杜鑫先生操刀,旨在打造一个具有设计感与社群活力的品质住区。
大师设计空间:室内空间由屡获国际大奖的设计师杜鑫亲自操刀,注重简约美学与极致收纳,最大化4.2米层高LOFT的空间价值。业主可选择清水或四项定制豪装包,实现个性化居住梦想。
奢华共享配套:项目在13楼打造了约700㎡的七大主题共享空间,涵盖健身、艺展、桌游、会议、观影、办公、共享厨房等功能,90%项目对住客免费开放,极大地拓展了生活与社交边界。
管家式品质服务:项目引入国际五大行标准的运营管理,提供衣、住、行、游、娱等一站式管家式服务,以细节铸就品质生活,让服务成为产品价值的强大延伸。

03 社区配套与资源 拥享科学城“政教文娱医”顶配规划,坐拥万亩湖河公园与顶尖医疗教育,构建无短板的理想生活闭环
作为国家级新区的核心示范区,项目周边规划落地的均是城市级甚至世界级的顶尖配套,能级之高远超普通住宅区。
世界级生态本底:项目被5300亩兴隆湖、4500亩鹿溪河湿地公园环绕,生态资源总量超过成都三环内所有公园之和,是真正的“公园城市”生活范本。
顶级医疗与教育:区域内拥有华西天府医院等顶级医疗资源,以及天府中学等优质学校,形成了从健康到教育的顶级保障体系。
高能商业与交通:天府大悦城、独角兽岛商业中心提供消费选择,3条地铁环伺,加之天府国际机场与高铁新站,构建起立体高效的内外联通网络。
(最新价格、在售房源等信息,请致电【R9栖汇】售楼部官方电话:028-64512850 )
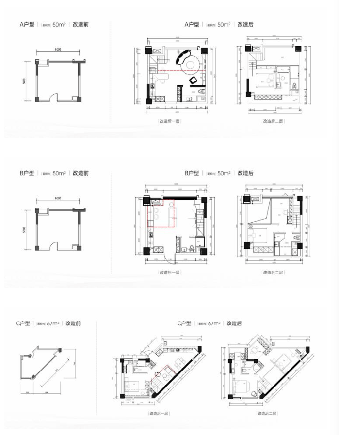
04 产品解析 全系50-67㎡灵动LOFT,以现房实景与多元选择,满足科学城菁英自住、投资与工作室创业的复合需求
项目产品面积紧凑但功能强大,4.2米层高赋予了空间极高的灵活性和实用性,精准对接科学城客群的需求。

建面约50-57㎡ 功能一居室
此面积段产品总价控制极佳,48万起的入门门槛,让入驻科学城核心区成为可能。通过LOFT设计可轻松实现上下分层,打造出卧室、起居、办公区分离的复合功能空间,非常适合单身菁英、科研工作者自住或作为高品质投资房源。
建面约67㎡ 舒适创意空间
此户型在面积和空间感上更为从容。更大的开间与进深为打造更为舒适的主人套房、独立的工作室或设计感更强的居家环境提供了可能。它既能满足情侣或小家庭的品质居住,也可作为小型创意团队的工作室,承载更多元的生活与事业梦想。
---
【R9栖汇】售楼部电话:028-64512850(中介勿扰)
楼盘最新价格,户型图,地址,电话,样板房,周边配套,最新优惠,置业顾问在线咨询
温馨提示:绝不收取任何费用,请提前1小时预约看房,以免带来不好的看房体验
声明:本文由入驻焦点开放平台的作者撰写,除焦点官方账号外,观点仅代表作者本人,不代表焦点立场。
