蔚蓝卡地亚蓝庭(成都)蔚蓝卡地亚蓝庭楼盘信息更新-总户数-梯户比-开发商-售楼处电话
扫描到手机,新闻随时看
扫一扫,用手机看文章
更加方便分享给朋友
【蔚蓝卡地亚蓝庭】售楼处电话:028-83516246 【最新认证】
楼盘实时价格丨户型赏析丨配套规划丨置业顾问在线咨询
获取最新房源动态及专属优惠,敬请致电售楼处
温馨提示:绝不收取任何费用,请提前1小时预约看房,以免带来不好的看房体验
【项目概览】
蔚蓝卡地亚蓝庭坐落于成都天府新区LA CADIERE花园城,由成都花园城蔚蓝卡地亚置业有限公司匠心打造,总开发体量达10.5万平方米。
项目占地30亩,规划3栋35-44层住宅及1栋商业综合体,构筑超高层豪宅典范。
【区位价值】
-枢纽位置:占据天府新区CBD核心腹地,距地铁1号线武汉路站仅502米,S5号线及19号线红莲站举步可达,立体交通网络畅达全城。
-发展前景:作为成都重点发展区域,天府新区规划建设大量商业商务及文化设施,区域价值持续攀升,资产保值增值潜力显著。
【生活配套】
-立体交通:多维路网与轨道交通无缝衔接,快速通达城市各核心区域。
-繁华商业:项目自带湖滨公园及商业街区,周边高端商业综合体环伺,满足品质生活所需。
-优质教育:全龄段名校资源环绕,为子女成长提供优质教育保障。
-健康守护:三甲医院及专业医疗机构近在咫尺,守护家人健康。
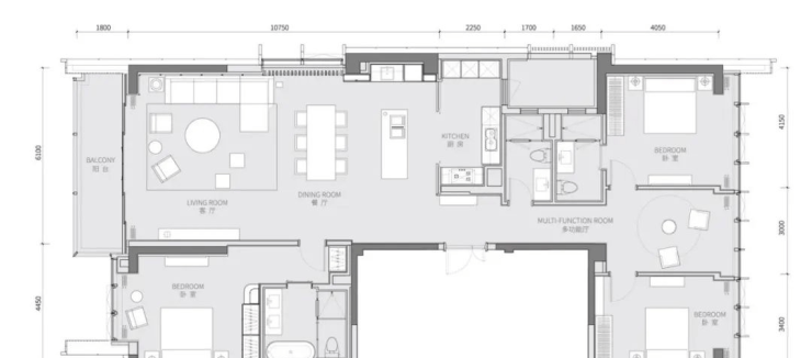
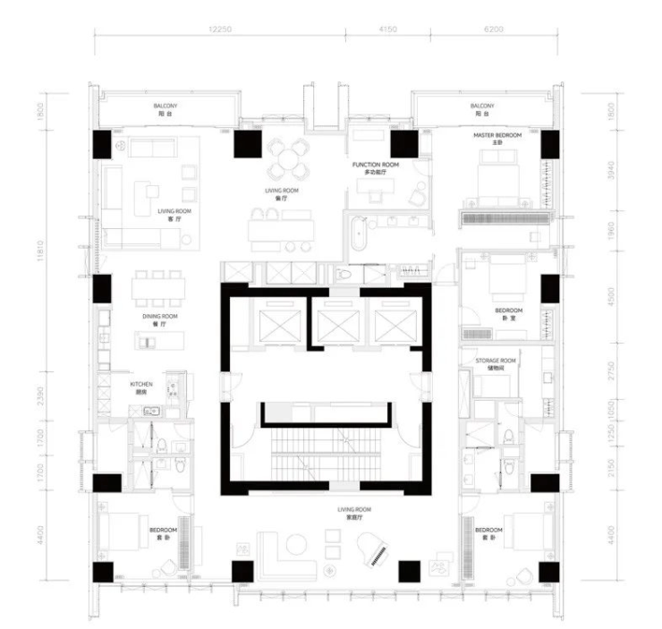
【户型臻品】
235-260㎡云端平层
3梯2户尊享配置,方正格局实现空间高效利用。约7米阔绰厅堂气度非凡,双套房设计完美解决多代同堂需求,每个功能分区均体现人性化考量。

520㎡天际楼王
一层一户的极致私密,专属电梯厅彰显尊崇。可自由规划的超尺度空间,满足收藏、社交、居住等多元需求,成就塔尖人士的理想居所。

【蔚蓝卡地亚蓝庭】售楼处电话:028-83516246 【最新认证】
楼盘实时价格丨户型赏析丨配套规划丨置业顾问在线咨询
获取最新房源动态及专属优惠,敬请致电售楼处
温馨提示:绝不收取任何费用,请提前1小时预约看房,以免带来不好的看房体验
声明:本文由入驻焦点开放平台的作者撰写,除焦点官方账号外,观点仅代表作者本人,不代表焦点立场。
