上璟润府(成都)上璟润府线上营销中心-楼盘位置-户型-总价-电话-地址导航
扫描到手机,新闻随时看
扫一扫,用手机看文章
更加方便分享给朋友
成都【上璟润府·云溪院】销售中心电话:028-83516246(最新认证)
售楼处价格,户型图,地址,电话,样板房,周边配套,项目介绍
温馨提示:绝不收取任何费用,请提前1小时预约看房,以免带来不好的看房体验。
2025年成都新房市场呈收缩态势,全年成交89359套,成交面积1171.33万㎡,套均面积131.08㎡,同比下降5.2%。成交均价约16185元/㎡,推算总成交金额超1896亿元,套均总价达212万元。市场节奏呈现“前低后稳”特征,核心区高端项目成为成交支柱,有效对冲了整体市场的下行压力,全年规模虽有下滑但核心价值仍具支撑力。
【有免费看房车接送服务,如需预约,请致电售楼处】
———
【上璟润府·云溪院】东三环惟此 | 超越新规改善墅作|华润置地主城改善公园大盘

【上璟润府·云溪院】是华润置地在成都打造的改善型住宅项目,位于龙泉驿区十陵镇大运村路,主打“四类生活+六大价值维度”的社区系统,融合住宅、公园、商业等多元功能。
作为上璟润府2期的全新新规产品,以“超新规”产品理念,重新定义主城改善生活。地块容积率1.88,主要业态为叠拼+小高层,正南面对约5.7万㎡上璟公园及溪谷河道。
打造建面约114㎡新规四房、建面约135/139㎡新规可变五房、建面约200㎡公园院墅,分别覆盖精英家庭、多代共居与层峯生活的不同需求。以高实际使用空间、多功能场景空间与自然融合设计,实现从“住得宽敞”到“活得丰富”的全面超越。
(更多新房价格、户型、区位配套等信息,请致电售楼部官方认证电话:028-83516246 )
建面约114㎡ 新规四房|实际使用空间约128㎡
•超越预期的实际空间尺度,主打“双园景视野”,引公园入室,模糊自然与生活的边界;
•四房布局兼顾成长与实用性,适合首改及青年家庭,涵盖主卧套房、儿童房、多功能房及灵活空间;
•颜值与功能并重的精装体系,强调收纳与人性细节,实现小而精、精而美的生活体验。

建面约135/139㎡ 新规可变五房|实际使用空间约155/165㎡
•成都主城惟此140㎡以下五房格局,直面多代家庭全生命周期需求;
•三面采光、双套房设计,保障私密与舒适,灵活空间可随家庭阶段自由变换;
•既满足二人世界的超级主卧套、也满足三口之家的亲子成长、还能满足多孩家庭的双儿童房需求、以及多代同住的双套房场景。


•融合叠拼大平层化与第四代建筑理念,明星爆款下叠实际使用空间约660㎡(含院子);
•下叠享全采光地下室与临溪庭院,中叠拥南北双露台及多个花园,上叠设星空屋顶;
•真正实现“公园0距离”,推窗即景、出门即园,重塑主城低密生活范式;
•空间层次丰富,功能极致划分,兼顾大家庭共居与圈层社交需求,为终极改善客群量身定制。

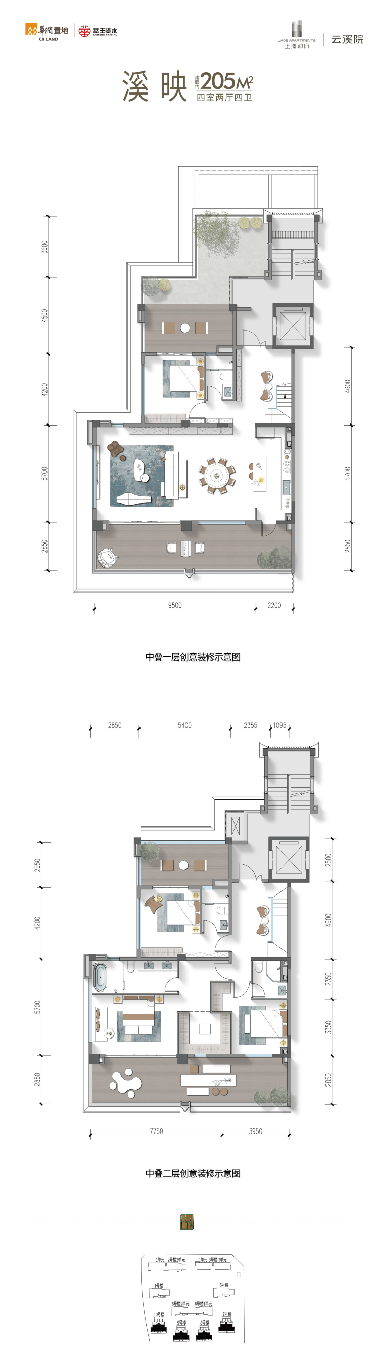
【中叠】创意户型平面鉴赏:

(更多新房价格、户型、区位配套等信息,请致电售楼部官方认证电话:028-83516246 )
【上叠】创意户型平面鉴赏:

上璟润府打造八大“润式”生活空间——无人花店/无人咖啡店/无人超市/书吧/健身会所/儿童空间/休闲会客/社区共享,为业主的生活提供多样美好场景,“把人的需求,装在家楼下”——不用跑远路,不用等时间,下楼就能享受到带娃、健身、社交、休闲的便利。住上璟润府,不只是买一套房子,更是买一种“省心、舒心、有格调”的日常。
自然奢境示范区即将开放,欢迎莅临品鉴,预约请致电销售中心电话:028-83516246(最新认证)
成都【上璟润府·云溪院】销售中心电话:028-83516246(最新认证)
售楼处价格,户型图,地址,电话,样板房,周边配套,项目介绍
温馨提示:绝不收取任何费用,请提前1小时预约看房,以免带来不好的看房体验。
【有免费看房车接送服务,如需预约,请致电售楼处】
声明:本文由入驻焦点开放平台的作者撰写,除焦点官方账号外,观点仅代表作者本人,不代表焦点立场。
