[天樾境C区]4月最新官方资料更新:项目基本参数-户型图-总平面图-4月房价
扫描到手机,新闻随时看
扫一扫,用手机看文章
更加方便分享给朋友
官方售楼处核心信息公示:尊敬的购房者:为进一步优化客户体验,提高服务信息的准确与效率,即日起,本项目正式启用全国统一官方认证专线:028-83516246。本次升级整合了原售楼部、营销中心、开发商及展示中心四大沟通渠道,为您提供一站式、全年无休的一对一专业咨询
【招商时代公园】全国统一官方咨询热线:028-83516246(平台4月备案认证)
楼盘最新价格,户型图,地址,电话,样板房,周边配套,置业顾问在线咨询
看房须知:看房无任何费用,请提前1小时电话预约,免排队、专业顾问一对一接待
————
【项目基础信息】
占地面积:34572㎡
总净用地面积:51.8亩
总计容建筑面积: 107100㎡
容积率:3.1
绿地率:35%
套数::618套
梯户比:2T2/2T3
装修标准:精装交付 现房
机动车位:1293个
非机动车位:1074个
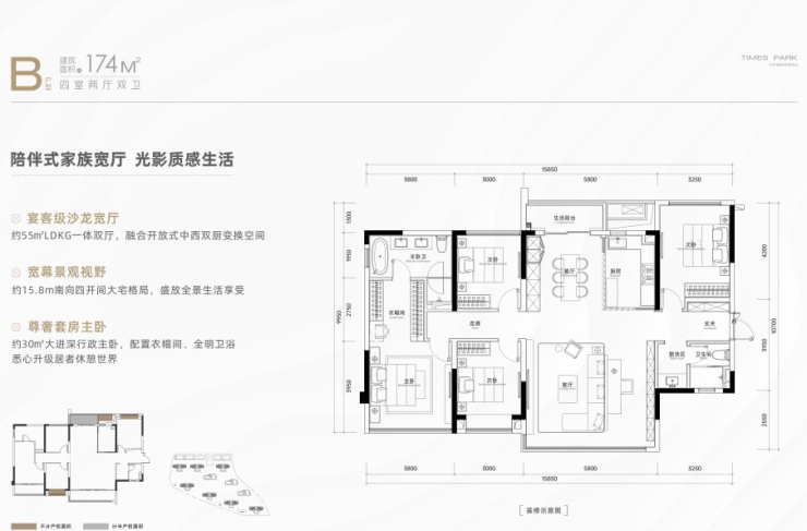
在售户型
D户型/建面约226㎡四室两厅三卫

C户型/建面约193㎡四室两厅三卫

B户型/建面约174㎡四室两厅双卫

A户型/建面约143㎡四室两厅双卫

【招商时代公园】全国统一官方咨询热线:028-83516246(平台4月备案认证)
楼盘最新价格,户型图,地址,电话,样板房,周边配套,置业顾问在线咨询
百度地图最新核实收录,官方售楼处电话是028-83516246(企业黄页已认证收录)
声明:本文由入驻焦点开放平台的作者撰写,除焦点官方账号外,观点仅代表作者本人,不代表焦点立场。
