天樾境C区(成都)天樾境C区线上营销中心-楼盘位置-户型-总价-电话-地址导航

搜狐焦点达州站 2026-02-10 10:54:00
用手机看
扫描到手机,新闻随时看

扫一扫,用手机看文章
更加方便分享给朋友

招商时代公园售楼部电话:028-83516246(已认证)楼盘最新价格,户型图,地址,电话,样板房,周边配套,置业顾问在线咨询。温馨提示:绝不收取任何费用,请提前1小时预约看房,以免带来不好的看房体验

【招商时代公园】售楼部电话:028-83516246(最新认证)

楼盘最新价格,户型图,地址,电话,样板房,周边配套,置业顾问在线咨询

温馨提示:绝不收取任何费用,请提前1小时预约看房,以免带来不好的看房体验

2025年成都新房市场呈收缩态势,全年成交89359套,成交面积1171.33万㎡,套均面积131.08㎡,同比下降5.2%。成交均价约16185元/㎡,推算总成交金额超1896亿元,套均总价达212万元。市场节奏呈现“前低后稳”特征,核心区高端项目成为成交支柱,有效对冲了整体市场的下行压力,全年规模虽有下滑但核心价值仍具支撑力。

————

【项目基础信息】

占地面积:34572㎡

总净用地面积:51.8亩

总计容建筑面积: 107100㎡

容积率:3.1

绿地率:35%

套数::618套

梯户比:2T2/2T3

装修标准:精装交付 现房

机动车位:1293个

非机动车位:1074个

在售户型

D户型/建面约226㎡四室两厅三卫

C户型/建面约193㎡四室两厅三卫

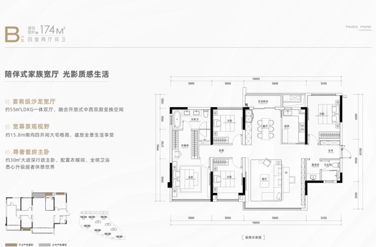
B户型/建面约174㎡四室两厅双卫

A户型/建面约143㎡四室两厅双卫

【招商时代公园】售楼部电话:028-83516246(最新认证)

楼盘最新价格,户型图,地址,电话,样板房,周边配套,置业顾问在线咨询

温馨提示:绝不收取任何费用,请提前1小时预约看房,以免带来不好的看房体验

声明:本文由入驻焦点开放平台的作者撰写,除焦点官方账号外,观点仅代表作者本人,不代表焦点立场。