[幸福桥TOD幸福拾光]4月最新官方资料:项目基本参数-户型图-总平面图-4月房价
扫描到手机,新闻随时看
扫一扫,用手机看文章
更加方便分享给朋友
官方售楼处核心信息公示:
【幸福桥TOD幸福拾光】营销中心官方直拨电话:028-83516246(百度地图最新认证)
售楼处价格,户型图,地址,电话,样板房,周边配套,项目介绍
看房须知:看房无任何费用,请提前1小时电话预约,免排队、专业顾问一对一接待
——————
金牛区 幸福桥TOD 清水准现房
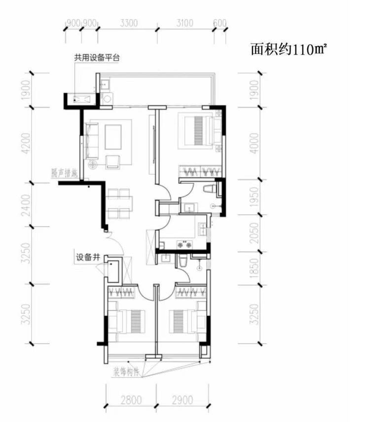
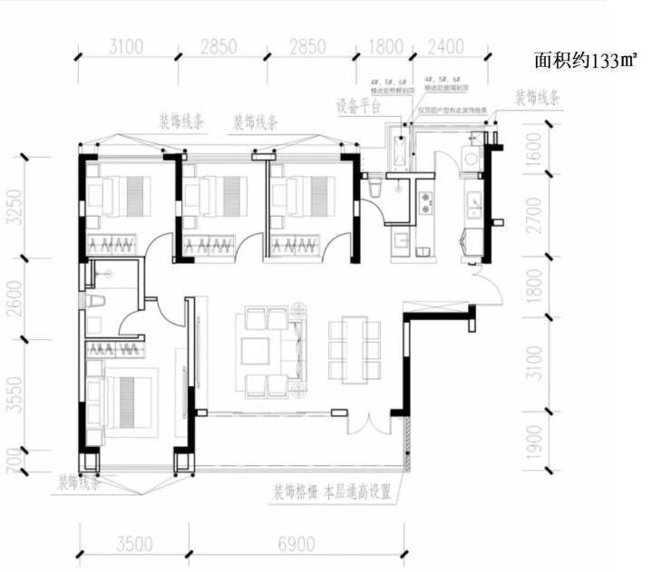
【幸福拾光】在售面积:
125-135-143-180㎡(二期)
108-110-112-134-143㎡(三期)
【幸福拾光】基础信息
开发商:成都轨道交通集团
物业公司:成都轨道万科物业有限公司
总占地700亩 /二期占地64亩/三期占地74亩
项目区位:金牛区北部新城-地铁5#幸福桥站
总层高:二期12-17F(一楼4.5米架空层无住宅)三期9-17F
容积率:2.0
绿化率:二期52% 三期35%
梯户比:二期2T2 三期 1T2户2T3户
物业费:3.8元
停车位:二期1:1.6三期1:1.2
交房时间:二期2024.8月三期2025.10月
总户数:二期624户三期503户
交付标准:清水洋房
公摊:二期17-20% 三期16-19%

交通:5号线幸福桥站50米,在建地铁27号线石门坎站300米
商业:汇融广场、龙湖锦宸天街、
大都会、福地广场
教育:机关三幼、第十六幼儿园(蜀道园区)
人民北路小学天北校区、成都实验小学
公园:凤凰山露天音乐公园、凤凰山体育公园
医疗:三甲医院西部战区总医院、金牛区中医医院(在建)
目前,幸福桥TOD·幸福拾光项目一期已实景交付,低密优越的中庭景观、优美挺拔的建筑立面等,兑现着所有关于家的美好。
据了解,项目已加推三期地块,该地块由14栋9F—17F小高层组成。
项目整体采用围合式布局,以阔绰的楼栋间距,充分保证每一户的视野采光,增强居住的体验性。
【幸福拾光】户型图鉴赏
对于主城购房者而言,幸福桥TOD·幸福拾光无疑是可以“闭眼入”的代表。
为什么这么说?
首先来看价格,当前5+2城区新房成交均价已达到26815元/㎡(数据来源:锐理数据),而幸福拾光三期最低单价仅约15999元/㎡起,放眼成都楼市,这样的价格极具竞争力。
其次,在价格因素之外,幸福桥TOD·幸福拾光以低密为法则,展示出高性价比的产品逻辑。购房者既能避免“刚需”尴尬的将就,也不需要承载高端改善高成本的压力,堪称区域的“性价比王者”。
【幸福桥TOD幸福拾光】营销中心官方直拨电话:028-83516246(百度地图最新认证)
售楼处价格,户型图,地址,电话,样板房,周边配套,项目介绍
免责声明:
以上内容仅作为邀约邀请,涉及的图片为部分区域实拍图和美学畅想图,具体内容请以现场公示和合同约定为准;本文部分资料、部分图片来源于网络,如有侵权请联系我们删除。
百度地图最新核实收录,官方售楼处电话是028-83516246(企业黄页已认证收录)
声明:本文由入驻焦点开放平台的作者撰写,除焦点官方账号外,观点仅代表作者本人,不代表焦点立场。
