马厂坝青雲九天(成都)青云九天区位图-项目总平面图-楼盘户型图-售楼电话-2月最新动态
扫描到手机,新闻随时看
扫一扫,用手机看文章
更加方便分享给朋友
成都【马厂坝TOD·青雲九天】售楼部电话:028-83516246(最新认证)
楼盘最新价格,户型图,地址,电话,样板房,周边配套,置业顾问在线咨询
温馨提示:绝不收取任何费用,请提前1小时预约看房,以免带来不好的看房体验
2025年成都新房市场呈收缩态势,全年成交89359套,成交面积1171.33万㎡,套均面积131.08㎡,同比下降5.2%。成交均价约16185元/㎡,推算总成交金额超1896亿元,套均总价达212万元。市场节奏呈现“前低后稳”特征,核心区高端项目成为成交支柱,有效对冲了整体市场的下行压力,全年规模虽有下滑但核心价值仍具支撑力。
————
?二期升级新品绽放 全新升级
⭕建面约105/126/143平 套三套四新规产品
?房率超110%
E地块强势加推 新规王炸产品
马厂坝TOD,成都市首批14个TOD示范项目之一,青羊首个亮相的TOD,一体化设计范围约3000亩,占据青羊新城核芯,将成为集城市综合服务、新兴产业及改善居住高地于一体的多元活力区级新中心。
(更多新房价格、户型、区位配套等信息,请致电售楼部官方认证电话:028-83516246 )

?组团名:马厂坝TOD·青雲九天
?二期占地面积:约211亩(E地块23.5亩)
?E地块总户数:262户
?容积率:约2.0
?绿地率:约35%
?物业类型:住宅
?建筑层数:10-17层
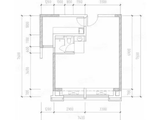
?户型区间:约105㎡三房/126/143㎡四房
?户型结构:纯板式1梯2户,2梯2户
?停车位:317个
?入户方式:独立入户,私享入户光厅
?亮点:?地铁口/?大型商业龙湖天街/?泡小、胜西、教科院附中等名校
?物业:轨道万科物业
♥️效果图展示
更多信息详询成都【马厂坝TOD·青雲九天】售楼部电话:028-83516246(已认证)
?约10万㎡产业区
?超38万㎡高端居住区
?约20万㎡商务区
户户配置入户光厅;全系大横厅+大阳台设计;LDK一体化空间;主次卧奢适尺度保障;精研当代高端家庭生活场景所需,定制化打造人与自然强交互、人与人强交互的家庭社交型空间。
板式大宅,阔奢独立入户 +约7M大阳台
105户型样板间展示
126平户型样板间展示
143平样板间展示
⚠️最后得房率与实景以最终交付为准
成都【马厂坝TOD·青雲九天】售楼部电话:028-83516246(最新认证)
楼盘最新价格,户型图,地址,电话,样板房,周边配套,置业顾问在线咨询
温馨提示:绝不收取任何费用,请提前1小时预约看房,以免带来不好的看房体验
声明:本文由入驻焦点开放平台的作者撰写,除焦点官方账号外,观点仅代表作者本人,不代表焦点立场。
