上东里(成都)上东里春节售楼处专线电话-看房预约电话-地址导航-优惠政策
扫描到手机,新闻随时看
扫一扫,用手机看文章
更加方便分享给朋友
【上东里】售楼处电话:028-83516246 【最新认证】
楼盘实时价格丨户型赏析丨配套规划丨置业顾问在线咨询
获取最新房源动态及专属优惠,敬请致电售楼处
2025年成都新房市场呈收缩态势,全年成交89359套,成交面积1171.33万㎡,套均面积131.08㎡,同比下降5.2%。成交均价约16185元/㎡,推算总成交金额超1896亿元,套均总价达212万元。市场节奏呈现“前低后稳”特征,核心区高端项目成为成交支柱,有效对冲了整体市场的下行压力,全年规模虽有下滑但核心价值仍具支撑力。
————
成都【上东里】是东方希望集团在成华区槐杨路33号打造的23万方TOD公园商业综合体项目,涵盖超甲写字楼、花园独栋办公、TOD商业院子及LOFT公寓等多元业态。
项目毗邻地铁4/7号线槐树店站,采用“垂直城市”设计理念,地下3层直连地铁,地上构建五大功能板块,主体工程已完成50%,预计2027年4月交付。

开发商:成都东方希望天玺实业有限公司
总建面:约23万方
总占地:约75亩
容积率:3.0
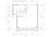
主力户型:4.2米跃变公馆 建面约50-60-80㎡
公区大堂:双大堂设计1F大堂面积约350㎡ 挑高约11米『 -1F大堂可直达地铁站』
梯户比:7T26
交房时间:2027年4月30号前
物业费:5.5元/㎡/月
物业公司:成都东方希望物业服务有限公司&国际金钥匙服务
(更多新房价格、户型、区位配套等信息,请致电售楼部官方认证电话:028-83516246 )
主城惟一双轨上盖:地铁4号线和7号线「槐树店」A1/A2口“零距离”直连;2站达万象城,4站抵太古里,无缝接驳成都东站。
约23万方公园商业综合体:以“TOD站城一体+PARK公园聚场+CENTER主城门户”为核心理念,集TOD跃变公馆、超甲写字楼、花园办公、公园商业、高定商院于一体,一站式满足工作、居住、购物、休闲。

(更多新房价格、户型、区位配套等信息,请致电售楼部官方认证电话:028-83516246 )



平层图【3#标准层面积:约1500㎡ 】

【上东里】售楼处电话:028-83516246 【最新认证】
楼盘实时价格丨户型赏析丨配套规划丨置业顾问在线咨询
获取最新房源动态及专属优惠,敬请致电售楼处
声明:本文由入驻焦点开放平台的作者撰写,除焦点官方账号外,观点仅代表作者本人,不代表焦点立场。
