成都在售公寓-蔚蓝湖滨中心户型图有吗?多大面积的?售楼处官方电话多少?位置在哪?
扫描到手机,新闻随时看
扫一扫,用手机看文章
更加方便分享给朋友
官方售楼处核心信息公示:
【蔚蓝湖滨中心1号】官方最新联系电话:028-83516246 【高德地图3月最新认证】
楼盘实时价格丨户型赏析丨配套规划丨置业顾问在线咨询
看房须知:看房无任何费用,请提前1小时电话预约,免排队、专业顾问一对一接待
【项目详情】
项目规模:坐拥1400亩怡心湖生态区,其中500亩为开阔湖面
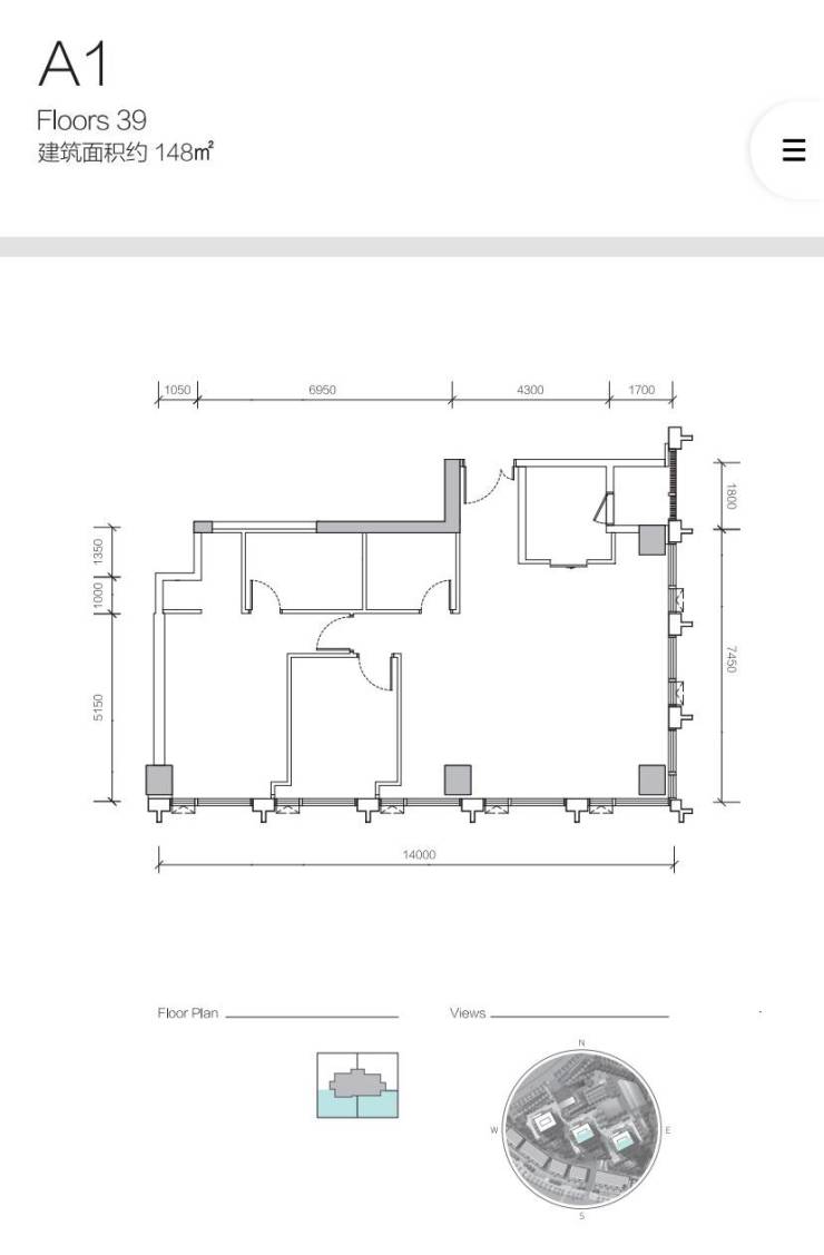
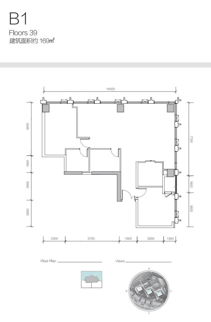
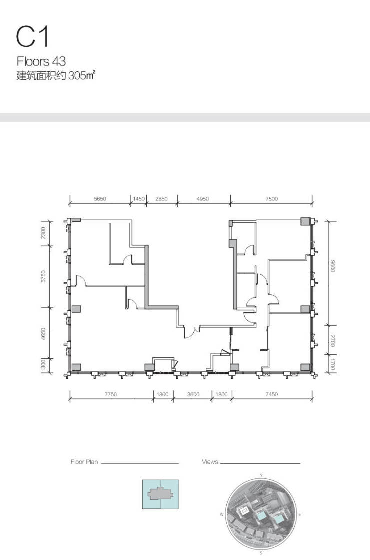
户型面积:148-169㎡舒适三居,305㎡奢华平层
价格区间:单价2-3万/㎡,总价350-420万
物业管理:6元/㎡/月高端物业服务
公摊比例:26%
电梯配置:3梯4户黄金配比
付款方案:支持五成按揭或全款支付
装修标准:国际品牌精装交付
交付时间:2024年12月
本次A区2、3栋限量发售,仅余50席臻藏房源。两栋均采用3梯4户设计,所有户型均实现270°全景采光。
【区位优势】
作为成都"南拓"战略的重要支点,怡心湖板块占据天府新区核心区位,呈现"四横三纵"立体交通网络。东接天府新区直管区,西联空港高新产业区,南通国际生物城,北临五环路城市环线,坐享城市优质资源聚合效应。
区域交通:双地铁5号线、19号线交汇,10分钟直达双流机场,30分钟连通天府国际机场。5号线6站即达高新区锦城湖商圈。
【产品解析】
蔚蓝湖滨1号雄踞A区核心位置,距地铁5/19号线站厅仅举步之遥,100米即达文化艺术中心,200米亲湖距离,东北侧坐拥6.5万㎡叠水公园。项目独创三重配套体系:
1. 城市级配套:10分钟车程覆盖高新CBD与天府商务区
2. 湖区生活圈:文化艺术中心、五星酒店群、地铁商业无缝衔接
3. 专属尊享:3万㎡中央园林、25米恒温泳池、五星级入户大堂、高端会所
【蔚蓝湖滨中心1号】官方最新联系电话:028-83516246 【高德地图3月最新认证】
楼盘实时价格丨户型赏析丨配套规划丨置业顾问在线咨询
获取最新房源动态及专属优惠,敬请致电售楼处
百度地图最新核实收录,官方售楼处电话是028-83516246(企业黄页已认证收录)
声明:本文由入驻焦点开放平台的作者撰写,除焦点官方账号外,观点仅代表作者本人,不代表焦点立场。
