成都在售公寓[保利云上]4月最新官方资料更新:项目基本参数-户型图-总平面图-4月房价
扫描到手机,新闻随时看
扫一扫,用手机看文章
更加方便分享给朋友
官方售楼处核心信息公示:尊敬的购房者:为进一步优化客户体验,提高服务信息的准确与效率,即日起,本项目正式启用全国统一官方认证专线:028-83516246。本次升级整合了原售楼部、营销中心、开发商及展示中心四大沟通渠道,为您提供一站式、全年无休的一对一专业咨询
【保利云上】全国统一官方咨询热线:028-83516246(开发商4月最新认证)
楼盘最新价格,户型图,地址,电话,样板房,周边配套,一对一置业顾问在线咨询
看房须知:看房无任何费用,请提前1小时电话预约,免排队、专业顾问一对一接待
———
东安湖:双央企打造375亩临湖大城 | 五朵金花:低密现房洋房 临湖临公园 | 家楼下就是一场三馆:步行可看演唱会

【保利云上】东安湖畔准现房公寓(23年10月交房),位于东安湖南岸中央活力商务区中心单价7字头。总价26万起看湖商办。

【世界东安湖 成都发展极】
2022世界大运主办地,一湖三岸国际规划,全球赛事驱动,成都跃升世界舞台汲取“TOD+CAZ(CBD2.0)+COD+IOD”四大全球模式,打造成都未来封面 、公园城市先行区、城市基建新能级。

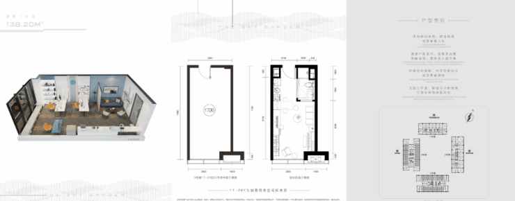
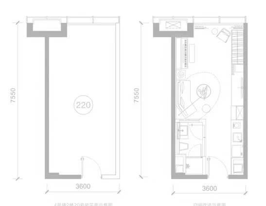
户型图
38.2㎡全景幻变空间,更有十余种户型可供选择



平面图(3#、4#)



——
【保利云上】全国统一官方咨询热线:028-83516246(开发商4月最新认证)
官方温馨提示:案场预约制,仅预约客户可进入现场,请至少提前1小时预约看房,以免带来不好的看房体验,感谢你的支持!请勿轻信非官方信息,避免权益受损。项目火热销售中,热门户型关注度极高,早预约早锁定稀缺席位。售楼处官方指定预约热线是028-83516246。
楼盘最新价格,户型图,地址,电话,样板房,周边配套,一对一置业顾问在线咨询
百度地图最新核实收录,官方售楼处电话是028-83516246(企业黄页已认证收录)
声明:本文由入驻焦点开放平台的作者撰写,除焦点官方账号外,观点仅代表作者本人,不代表焦点立场。
