【御园丰锦】线上售楼处首页-项目清盘优惠-售楼电话-项目价格折扣优惠-房价最新走势
扫描到手机,新闻随时看
扫一扫,用手机看文章
更加方便分享给朋友
【御园丰锦】售楼处电话:028-83516246 【已认证】
楼盘实时价格丨户型赏析丨配套规划丨置业顾问在线咨询
温馨提示:案场预约制,仅预约客户可进入现场,请至少提前1小时预约看房,以免带来不好的看房体验,感谢你的支持!
————
开发商年底清盘优惠,限量房源限时特惠,先到先得!详情请立即致电售楼处电话:028-83516246。
————
成都西三环「御园丰锦」年终清盘进入倒计时!
新加坡丰隆集团在蓉打造的标杆项目,「双TOD+双地铁+全龄学区+内外双公园」的新加坡式森居生活。
现在拨打售楼处专线 028-83516246 预约看房,
开发商:丰隆集团
总占地:31亩,在售产品高层+洋房
用户数:322户
在售楼栋:1/2/4栋
高层建面:126–138平米精装高层
洋房建面:127平精装洋房
总层高:3栋洋房12层 1、2、4栋高层22层
梯户比:
1、4栋2T3
2栋2T4
3栋 洋房1T2
物业费:3.6元/平/月
物业:阳光城物业
停车位:506
车位比:1:1.56
绿化率:30%
公 摊:19%-22%
容积率:2.9
交付标准:精装
装修标准:3000元/平
交房时间:现房
单价区间14500元/㎡
总价区间183万-203万
项目地址:郫都区犀浦镇龙吟路6号
项目总平图
(最新价格、在售户型等信息,请致电【御园丰锦】售楼部官方电话:028-83516246 )
作为新加坡第一大房企,丰隆集团自1941年成立以来,已在全球20多个国家打造超500个地标项目,资产规模超2000亿人民币。
御园丰锦作为其高端「丰锦系」第三子,延续了「滨海森居」的设计理念,将新加坡花园城市的精髓复刻到成都西三环。
在成都「东进南拓」的城市格局下,西三环作为「西贵」文脉的发源地,土地价值愈发稀缺。御园丰锦占位天河路/梓潼宫双地铁TOD核心区,步行5分钟即达 地铁2号线/6号线 双站点,3站直达犀浦站换乘成灌快铁,15分钟通勤天府广场,30分钟畅达双流机场。
双地铁覆盖:2号线串联春熙路、金融城等城市商圈,6号线直达天府商务区
TOD全能配套:项目周边规划约8万㎡商业综合体,涵盖生鲜超市、品牌餐饮、亲子乐园等业态
多维路网交织:沙西线、金牛大道、绕城高速等主干道环绕,自驾10分钟接入三环路
项目周边3公里范围内构建了「幼儿园到中学」的15年教育闭环。正读犀浦外国语学校(公立),该校是郫都区硬件设施最完善的学校之一,师资力量雄厚;步行10分钟可达金苹果西区幼稚园、哈佛国际美语幼稚园,西南交大、成都外国语学校等名校环伺,为孩子成长提供优质教育资源。

御园丰锦独创「一轴一心四庭」的园林格局,内部打造约7000㎡新加坡滨海风情中庭,包含蓝楹花主题景观轴、中央水景、儿童乐园等功能区;外部斥资打造7亩市政公园,与项目内部园林形成「双公园」生态体系,人均绿化面积达12㎡。
林语花涧主轴:蓝楹花与景观水帘交织,营造浪漫归家仪式感
林语水岸:大面积镜面水景搭配艺术雕塑,还原新加坡滨海度假体验
星光健身跑道:约600米塑胶跑道贯穿社区,沿途设置休憩驿站和夜间照明
全龄活动空间:分龄儿童乐园、长者康养区、露天烧烤台等社交场景
区别于市场上普遍的期房销售,御园丰锦所有房源均为实景现房,购房者可实地考察房屋质量、采光通风、视野景观等细节,签订购房合同后最快30天即可收房入住,有效规避烂尾、延期交付等风险。
(最新价格、在售户型等信息,请致电【御园丰锦】售楼部官方电话:028-83516246 )
@御园丰锦实拍图
项目引入全国TOP10物业——阳光城物业,以「用心服务,共享阳光」为理念,提供24小时安保巡逻、智能安防监控、园林定期维护等服务。社区还配置了智能快递柜、社区医疗站、老年活动中心等便民设施,让业主享受安全、便捷、舒适的居住体验。
(最新价格、在售户型等信息,请致电【御园丰锦】售楼部官方电话:028-83516246 )
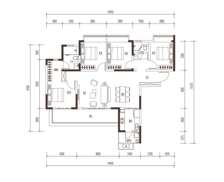
B1户型 建面约126.75㎡ 四室两厅两卫
7米观景阳台+轩敞主卧套房
适合三代同堂家庭
C1户型 建面约138.48㎡ 四室两厅两卫
7.5米奢阔横厅+双阳台设计
兼具居住与社交功能
御园丰锦——由新加坡丰隆集团匠心打造的约31亩低密社区,以2.9容积率、30%绿化率,为成都菁英人群呈现「出则繁华,入则宁静」的理想居所。清盘优惠,先到先得!致电售楼处官方电话抢占先机:028-83516246 【已认证】。
【御园丰锦】售楼处电话:028-83516246 【已认证】
楼盘实时价格丨户型赏析丨配套规划丨置业顾问在线咨询
获取最新房源动态及专属优惠,敬请致电售楼处
声明:本文由入驻焦点开放平台的作者撰写,除焦点官方账号外,观点仅代表作者本人,不代表焦点立场。
