金融城8号(成都)房价,楼盘户型,周边配套,交通地图,电话
扫描到手机,新闻随时看
扫一扫,用手机看文章
更加方便分享给朋友
【金融城8号】售楼处电话:028-83516246 【已认证】
楼盘实时价格丨户型赏析丨配套规划丨置业顾问在线咨询
获取最新房源动态及专属优惠,敬请致电售楼处
——————
2025 年 12 月 10 日,成都金融城板块迎来重磅消息 —— 核心地段顶豪项目【金融城 8 号】正式取证!
作为金融城一期稀缺的纯高端住宅,项目清水均价约 69295 元 /㎡,最高单价达 77900 元 /㎡,总价区间 1502 万 - 2554 万,瞬间引爆成都高端楼市。

金融城 8 号的核心竞争力,源于其不可复制的金融城一期核心占位—— 作为成都 “西部经济中心” 的核心承载区,金融城板块汇聚了交子公园金融商务区、超甲写字楼集群、高端商业配套,是成都城市价值的 “天花板”,土地稀缺性堪称极致。
1. 板块价值:寸土寸金的顶豪聚集区
金融城板块历经十余年发展,已成为成都高端住宅的 “代名词”。
2025 年成都土拍市场中,高新大源地价破 3 万 /㎡、“金三” 地价破 4 万 /㎡,间接印证了城南核心区的价值坚挺。而金融城 8 号位于金融城一期成熟板块,周边无新增住宅用地供应,“卖一套少一套” 的稀缺属性,让项目成为高净值人群资产配置的核心选项。
2. 全维配套:顶流资源环绕,生活与商务无缝衔接
对于追求 “城市核心资产 + 高端生活品质” 的高净值人群而言,金融城 8 号的区位优势几乎无可替代。
(最新价格、在售户型等信息,请致电【金融城8号】售楼部官方电话:028-83516246 )

1. 基础规划:超高层集群,纯高端定位
项目总占地约 27 亩,规划 4 栋约 160 米超高塔楼,其中仅 T3 为住宅产品,其余 T1(超甲写字楼)、T2/T5(商业公寓)为配套业态,确保住宅圈层的纯粹性。住宅共 46 层约 130 套房源,本次首批次取证 88 套(5-27 层),后续还有高层房源待售,稀缺性拉满。


2. 户型与价格:大平层为主,总价 1500 万起
(最新价格、在售户型等信息,请致电【金融城8号】售楼部官方电话:028-83516246 )

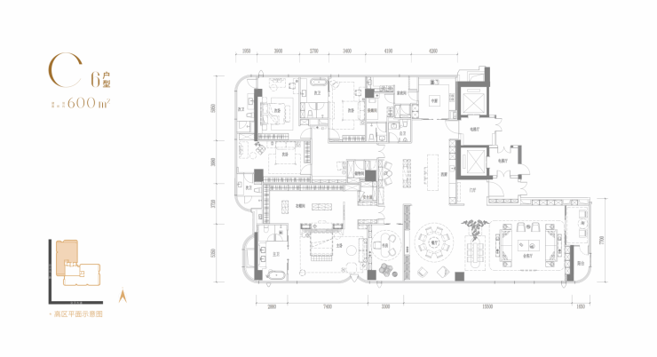
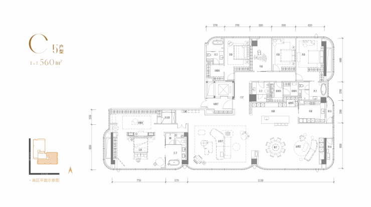
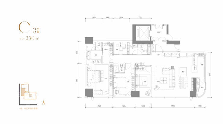
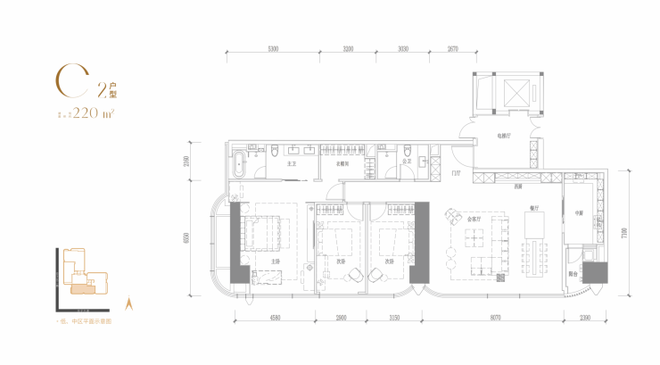
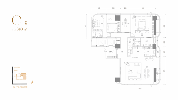
3.部分户型图鉴赏





(最新价格、在售户型等信息,请致电【金融城8号】售楼部官方电话:028-83516246 )
3. 产品优势:超高层视野,圈层纯粹
项目作为 160 米超高层住宅,拥有无遮挡的城市景观视野,可俯瞰交子公园与金融城城市天际线;住宅仅 130 套的规划,确保了居住圈层的纯粹性,契合高净值人群对隐私与社交的双重需求。

金融城 8 号的取证,背后是一段 “烂尾重生” 的传奇经历,也为项目的品质与交付增添了多重保障。
1. 项目前身:停滞十余年的 “城市伤疤”
项目原为 “海峡友谊大厦”,2013 年 11 月启动建设,2014 年 12 月因开发商资金链断裂陷入停滞,成为金融城板块十余年的 “烂尾楼”,一度被视为城市发展的 “伤疤”。
2. 重生契机:政企联动激活烂尾项目
2023 年,成都印发《关于建立健全重大项目全生命周期管理服务机制的实施方案》,将 “金融总部商务区 8 号地块” 纳入 “激活提升类” 重大项目。成都高新区专门成立由管委会主要领导牵头的烂尾楼处置工作专班,联动规划、产业、法院等多部门推进项目重整。
3. 重整落地:9.75 亿接手,20 亿续建保障
2023 年 1 月,成都市中级人民法院批准项目重整计划,四川鸿铠建设项目管理有限公司以 9.7566 亿元拿下项目所有权,成为重整投资人。随后,企业调集 1 亿元专用资金启动复工,并计划分批次投入约 20 亿元完成续建。2024 年 12 月,项目主体工程启新仪式举行,标志着复工续建进入实质性阶段,最终在 2025 年底顺利取证。
政企联动的背景 + 雄厚的资金投入,让项目彻底摆脱 “烂尾” 标签,为购房者提供了坚实的交付保障。
(最新价格、在售户型等信息,请致电【金融城8号】售楼部官方电话:028-83516246 )

1. 板块竞争:填补金融城一期纯住宅空白
当前金融城板块在售顶豪多集中于三期,如蔚蓝卡地亚花园城、成都招商玺等,而金融城 8 号作为一期稀缺纯住宅,凭借成熟配套与核心区位,与三期项目形成差异化竞争,填补了板块内纯高端住宅的供应空白。
2. 市场信号:顶豪市场需求坚挺
2025 年成都高端楼市中,超 300㎡大平层已成常态,本次金融城 8 号以 224-600㎡户型入市,进一步印证了高净值人群对 “大尺度、核心位、纯圈层” 住宅的需求。项目的取证,也为成都顶豪市场注入新的活力,预计将引发新一轮高端置业热潮。
3. 购房建议:这类人群可重点关注
总结:金融城核心的 “重生顶豪”,稀缺性决定价值高度
金融城 8 号的正式取证,不仅是一个烂尾项目的成功激活,更是成都顶豪市场的重要补充。其金融城一期的绝版地段、224-600㎡的顶豪户型、政企联动的交付保障,共同构成了项目的核心竞争力。对于高净值人群而言,项目既是 “即买即享” 的高端居住空间,也是抵御市场波动的核心资产。

————
【金融城8号】售楼处电话:028-83516246 (已认证)
楼盘实时价格丨户型赏析丨配套规划丨置业顾问在线咨询
获取最新房源动态及专属优惠,敬请致电售楼处
声明:本文由入驻焦点开放平台的作者撰写,除焦点官方账号外,观点仅代表作者本人,不代表焦点立场。
