成都[国宾九玺]售楼处电话-楼盘具体位置-房价-户型-交房时间

搜狐焦点达州站 2026-04-21 14:10:00
用手机看
扫描到手机,新闻随时看

扫一扫,用手机看文章
更加方便分享给朋友

【金周路TOD国宾九玺】售楼部电话:028-83516246 (中介勿扰)

2026 年的春天来得格外早,气温回暖之际,成都楼市也迎来一轮亮眼 “小阳春”

【3月供销数据亮眼】

3月新房供应面积82.99 万㎡,环比增长143.8%,房企推盘节奏明显加快;备案成交面积 73.97 万㎡,环比上涨 94%,供销比0.89,市场整体呈现供不应求态势。

(图片资料来源:克而瑞)

【需求结构转变】

自 2025 年至今,改善需求已然成为成都新房市场的主流。据克而瑞数据,100-140㎡刚改及品质改善户型占比,从2025 年一季度的53%攀升至57%,置换升级需求持续释放。

不难看出,当下购房者的置业理念已然转变,不再仅仅满足于基础居住、有房可住,购房需求全面升级,更加注重居住舒适度与房屋综合品质,追求更高质量的居住体验。

(数据来源:CRIC市场顾问)编辑

——

尊敬的购房者:为进一步优化客户体验,提高服务信息的准确与效率,即日起,本项目正式启用全国统一官方认证专线:028-83516246。本次升级整合了原售楼部、营销中心、开发商及展示中心四大沟通渠道,为您提供一站式、全年无休的一对一专业咨询

【金周路TOD国宾九玺】售楼部电话:028-83516246 (开发商4月最新认证)

楼盘最新价格,户型图,地址,电话,样板房,周边配套,置业顾问在线咨询

温馨提示:绝不收取任何费用,请提前1小时预约看房,以免带来不好的看房体验

——

【项目简评】

国宾九玺,双轨地铁上盖(2 号线已通);2.05 容积率; 127 - 141㎡纯四房。海派森居园林串联公园,邻茶店子小学,TOD 商业 + 全龄配套定义城西改善范本。

项目作为主城首个双轨TOD项目(地铁2号线与9号线二期规划),融合居住、商业、生态于一体,打造“站城人”深度协同的微型城市,目标群体为追求高端生活品质的改善型家庭。

【项目基础信息】

开发商:成都轨道城市集团

项目占地:49.5亩

面 积:127m² 141m² 套四

单 价:待定

总 价:待定

得 房 率:98-100%左右

容 积 率:2.05

车 位 比:1:1.37

绿地率:35%

总户数:464户

车位数:646个

产品规划:9栋 住宅 1栋商业

楼 层:16-17层

梯 户 比:2T2 带入户光厅

交付标准:精装

装 标:待定

物业公司:自持物业

物 业 费:待定

交房时间:2027年10月30日

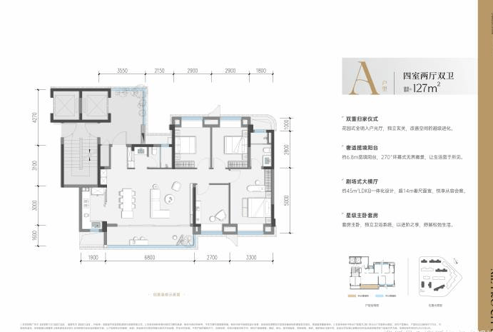
【户型臻选】

玺樾 |建面约127㎡ 四室两厅双卫

玺曜 |建面约141㎡ |四室两厅双卫

【金周路TOD国宾九玺】售楼部电话:028-83516246 (开发商4月最新认证)

楼盘最新价格,户型图,地址,电话,样板房,周边配套,置业顾问在线咨询

官方温馨提示:案场预约制,仅预约客户可进入现场,请至少提前1小时预约看房,以免带来不好的看房体验,感谢你的支持!请勿轻信非官方信息,避免权益受损。项目火热销售中,热门户型关注度极高,早预约早锁定稀缺席位。售楼处官方指定预约热线是028-83516246。

温馨提示:绝不收取任何费用,请提前1小时预约看房,以免带来不好的看房体验

声明:本文由入驻焦点开放平台的作者撰写,除焦点官方账号外,观点仅代表作者本人,不代表焦点立场。