锦城拾云(成都)锦城拾云楼盘详情-热销户型图-售楼处电话-成都新房市场走势
扫描到手机,新闻随时看
扫一扫,用手机看文章
更加方便分享给朋友
【锦城拾云】售楼处电话:028-83516246(最新认证)
楼盘最新价格,户型图,地址,电话,样板房,周边配套,置业顾问在线咨询
温馨提示:绝不收取任何费用,请提前1小时预约看房,以免带来不好的看房体验
2025年成都新房市场呈收缩态势,全年成交89359套,成交面积1171.33万㎡,套均面积131.08㎡,同比下降5.2%。成交均价约16185元/㎡,推算总成交金额超1896亿元,套均总价达212万元。市场节奏呈现“前低后稳”特征,核心区高端项目成为成交支柱,有效对冲了整体市场的下行压力,全年规模虽有下滑但核心价值仍具支撑力。
——
占地面积:约49亩
总建筑面积:约14.6万㎡
总户数:948户
容积率:3.0
绿地率:约35%
建筑密度:约25%
机动车位:1193个(车位比约1:1.25)
产品面积:建面约99㎡套三/119-136㎡套四
产权年限:70年
产品业态:小高层18F+洋房8F/11F
规划布局:大中庭围合式布局
占位成都主城核芯地脉——“主城中环”,作为唯一贯穿五城区的重要发展带,引导成都市政配套资源形成共享态势,已逐步成为成都高阶生活的宜居改善带。在这里,您可以感受到最精粹的成都人文底蕴与烟火生活。
坐拥成都主城文化地标,教育、交通、商圈等全维配套,尽揽城市一线资源,让历史底蕴与现代便捷交织在此,为居者勾勒一幅丰盛璀璨的生活画卷。

全龄优教资源 筑造菁英阶梯
成都第十三幼儿园、双水小学出门即达,石室初中(青龙校区)、成华区嘉祥外国语高级中学等名校,周边教育资源丰富,师资力量雄厚。
立体轨道交通 便捷畅达全城
地铁3号线(动物园站直线距离约200米)举步即达,与地铁1号线(韦家碾站,直线距离约1.4km)、地铁10号线(建设中)共同交织出轨道交通网,快速串联春熙路、金融城等核心区域。中环路、二环路、三环路、昭觉寺南路等主干道贯穿城市,从容掌握生活的张弛节奏。
繁华商圈环伺 尽享都会生活
熊猫生活广场、华润熙悦广场、泛悦城市广场、东立天地、青龙广场等五大商圈簇拥左右,都市生活的万千想象、缤纷意趣,触手可及。
稀贵生态谧境 随享自然栖居
南北双街心公园下楼即享,海滨公园的绿草如茵、沙河公园的潺潺流水、与成都露天音乐公园共同勾勒“推窗见景,出门入园”的鲜氧生活。
城市文娱地标 启幕潮趣玩乐
在昭觉寺(直线距离约0.5公里)感悟千年禅意,在天府国际动漫城邂逅创意活力,在成都动物园、成都大熊猫繁育研究基地探索自然、欢乐的家庭时光,让生活始终与美好同频。
(【锦城拾云】售楼处电话:028-62671228 【营销中心】)
精研城市人居需求,以家庭人员结构、成员关系、活动动线为基础,历经数百次改稿终呈四大经典改善户型,只为提供全面、舒适的美好惬意生活。
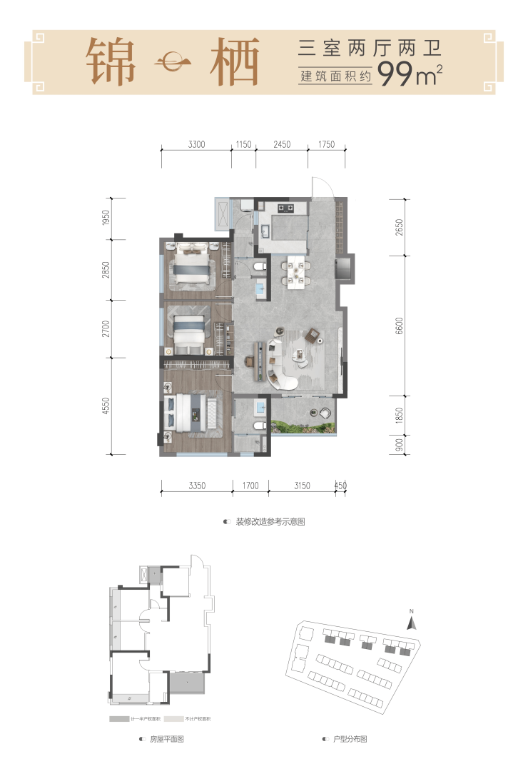
锦栖丨建面约99㎡灵动舒居丨三室两厅两卫

锦庭丨建面约119㎡精致华宅丨四室两厅两卫

锦澜丨建面约123㎡隐逸雅居丨四室两厅两卫

锦阙丨建面约136㎡阔境奢宅丨四室两厅两卫

成都锦城华创置业有限责任公司成立于2017年,是成华棚改公司全资子公司,隶属于成都市成华发展集团有限责任公司,由成华区国资委直管。
成都锦城华创置业有限责任公司,紧扣“城市开发建设、商业载体开发运营”两大核心主业,秉持“高端化定位、品牌化塑造、集群化发展”理念,以强劲的国企实力保障,用匠心铸造“锦城系”(住宅产品)、“华创系”(商业产业产品)两大产品系列,筑新成都品质生活。
金科服务是全国领先的高品质第三方综合服务商,连续十年获得“全国物业服务企业十强”,秉承“关爱无处不在”的服务理念,以专业细致的基础物业服务为保障、多元化服务内容,关注每一处细节。
【锦城拾云】售楼处电话:028-83516246(最新认证)
楼盘最新价格,户型图,地址,电话,样板房,周边配套,置业顾问在线咨询
温馨提示:绝不收取任何费用,请提前1小时预约看房,以免带来不好的看房体验
声明:本文由入驻焦点开放平台的作者撰写,除焦点官方账号外,观点仅代表作者本人,不代表焦点立场。
