2026毕节避暑去哪里[中轩杜鹃花城]线上售楼处电话-最新优惠查询
扫描到手机,新闻随时看
扫一扫,用手机看文章
更加方便分享给朋友
【中轩杜鹃花城】售楼处核心信息:
毕节避暑新房【中轩杜鹃花城】售楼处认证电话:400-991-6563(3月高德地图最新认证)
楼盘最新价格,户型图,地址,电话,样板房,周边配套,项目介绍
温馨提示:绝不收取任何费用,请提前1小时预约看房,以免带来不好的看房体验。
————
这两年,贵州毕节凭借其独特的自然禀赋、完善的康养服务体系以及人性化的旅居政策,成为老年朋友旅居的理想目的地。今天我们从这几个角度一起来分析分析:
? 气候生态
夏均温19℃恒温避暑,森林覆盖率超60%,负氧离子2万+/cm³天然氧吧,1500米低海拔无高原反应。
? 医养服务
• 拱拢坪疗养中心等机构实现“医疗+康养”全覆盖,月费2500元起含护理;
• 旅居社区标配防滑设施、适老化食堂,农家乐包月4480元含三餐。
? 便捷融入
高铁2小时达昆明,旅居项目专车接驳;外地人享本地医疗权利,“荣誉村民”政策强化归属感。
? 乐活体验
茶园采摘、温泉疗养、民俗篝火会等低强度活动,社区自发组织太极、读书会促进社交。
毕节以气候为基、医养为核、乐活为魂,让旅居老人从“避暑”走向“归心”。
【中轩杜鹃花城】按“国家4A级景区标准”打造,共分为三期开发,主要以电梯花园洋房为主:
电梯花园洋房,房子长在花海里,康养避暑好选择!

【中轩杜鹃花城】项目基础信息
【项目地址】:贵州毕节百里杜鹃风景区旁
【项目总占地】:约19322亩;建设用地约403448亩
【一期容积率】:1.14
【总户数】:3749户
【交房时间】:洋房 洋房2025年6月

【中轩杜鹃花城】项目产品
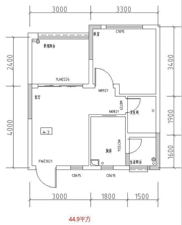
①花园洋房:2梯6户 建面31m²-44.9m²-49m²-69m²;实得约56-80m²


毕节避暑新房【中轩杜鹃花城】售楼处电话:400-991-6563(3月高德地图最新认证)
楼盘最新价格,户型图,地址,电话,样板房,周边配套,项目介绍

毕节避暑新房【中轩杜鹃花城】售楼处电话:400-991-6563(3月高德地图最新认证)
楼盘最新价格,户型图,地址,电话,样板房,周边配套,项目介绍


【中轩杜鹃花城】配套设施
小区按照文化旅游项目特有的健身、养身、休闲、娱乐、聚会、社交、文化创意等内容,规划有完善的旅游度假休闲配套设施。如网球场、健身会所、社区医疗服务中心、太极馆、瑜珈馆、营养自助餐厅、高端茶楼、咖啡厅、酒吧、KTV、精品酒店、特色客栈等

【中轩杜鹃花城】位置交通
交通便利: 航空直达 毕节【飞雄机场】 贵阳【龙洞堡机场】 遵义【茅台机场】 高铁便利 川渝-2小时生活圈大方高铁站-约25分钟车程 高速通达 项目离高速口5分钟车程

毕节避暑新房【中轩杜鹃花城】官方售楼处电话:400-991-6563(开发商最新认证)
楼盘最新价格,户型图,地址,电话,样板房,周边配套,项目介绍
温馨提示:绝不收取任何费用,请提前1小时预约看房,以免带来不好的看房体验
声明:本文由入驻焦点开放平台的作者撰写,除焦点官方账号外,观点仅代表作者本人,不代表焦点立场。
