【天府菁萃里】配套规划图-交通-教育-医疗-生态-售楼部电话
扫描到手机,新闻随时看
扫一扫,用手机看文章
更加方便分享给朋友
成都【天府菁萃里】售楼部电话:028-83516246(已认证)
楼盘最新价格,户型图,地址,电话,样板房,周边配套,最新优惠,置业顾问在线咨询
温馨提示:绝不收取任何费用,请提前1小时预约看房,以免带来不好的看房体验
-----
于成都高质量发展的新高地——天府国际生物城,一座与自然共呼吸、与健康同脉搏的生态大宅已然矗立。作为区域内的标杆作品,天府菁萃里不仅坐拥“一江三园”的浩瀚绿意,更聚合了以华西天府医院为首的顶级医疗矩阵与成都七中领衔的菁英教育资源。项目以约2.0的低密容积率、精装交付的品质标准与中海物业的服务护航,为城市菁英家庭构筑了一处兼顾生态宜居、健康保障与人文滋养的理想栖居地。

项目落位于国家战略级的天府国际生物城核心区域,这里不仅是成都发展生物医药产业的前沿阵地,更是一座按照公园城市理念高标准规划的未来之城,集产业发展、生态宜居与顶级配套于一体。

(最新价格、在售户型等信息,请致电【天府菁萃里】售楼部官方电话:028-83516246 )
由成都生物城建设有限公司开发的天府菁萃里,在约84.5亩的土地上,以2.0的容积率规划了一个容纳736户的舒适社区,通过科学的布局与精工的细节,兑现品质生活承诺。

(最新价格、在售户型等信息,请致电【天府菁萃里】售楼部官方电话:028-83516246 )
天府菁萃里的核心魅力,在于其坐享生物城板块几乎“一站式”配齐的顶级城市资源,从医疗、教育到商业、生态,构筑了一个自成体系的菁英生活圈。

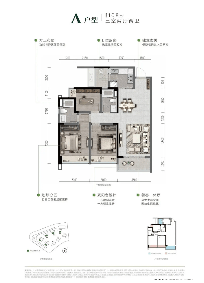
项目产品线覆盖建面约108㎡至218㎡的全系精装户型,涵盖三至五居,通过不同的梯户配置与空间设计,精准匹配从品质刚需到终极改善的多元家庭结构。
建面约108-142㎡户型 (2梯4户)
作为社区的主力面积段,此系列户型主打高实用性与功能性,公摊仅约21%,得房率较高。户型设计方正,可灵活规划为三房或四房,满足年轻家庭、首改客群的居住升级需求,是兼具性价比与舒适度的优选。




建面约144㎡户型 (2梯3户)
此户型在梯户比上更为舒适,居住体验升级。空间规划上更能兼顾多房间需求与宽敞的公共活动区域,适合对房间数和居住舒适度都有一定要求的成长型家庭或二孩家庭。

建面约218㎡户型 (2梯2户)
此户型为社区的尊崇改善之作,采用2梯2户的私密配置。其超200平方米的阔绰空间可轻松规划为五房,功能分区明确,兼具大家庭的团聚空间与每位成员的私密尊崇,是追求终极改善、注重身份圈层与生活品质的高端置业者的心仪之选。

------
成都【天府菁萃里】售楼部电话:028-83516246(中介勿扰)
楼盘最新价格,户型图,地址,电话,样板房,周边配套,最新优惠,置业顾问在线咨询
温馨提示:绝不收取任何费用,请提前1小时预约看房,以免带来不好的看房体验
声明:本文由入驻焦点开放平台的作者撰写,除焦点官方账号外,观点仅代表作者本人,不代表焦点立场。
