成都[招商时代公园-天澜境B区]4月最新官方资料更新:项目基本参数-户型图-总平面图-4月房价
扫描到手机,新闻随时看
扫一扫,用手机看文章
更加方便分享给朋友
官方售楼处核心信息公示:尊敬的购房者:为进一步优化客户体验,提高服务信息的准确与效率,即日起,本项目正式启用全国统一官方认证专线:028-83516246。本次升级整合了原售楼部、营销中心、开发商及展示中心四大沟通渠道,为您提供一站式、全年无休的一对一专业咨询
【招商时代公园-天澜境B区(59号】全国统一官方咨询热线:028-83516246(平台4月备案认证)
楼盘最新动态,开发商最新优惠政策,户型效果图,配套规划,专业顾问一对一在线咨询
看房须知:看房无任何费用,请提前1小时电话预约,免排队、专业顾问一对一接待
————
天府核芯低密住区|招商蛇口|143-162㎡精装四房


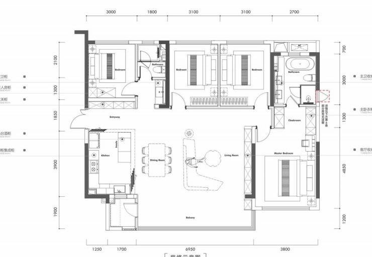
项目户型图鉴赏
项目在售主力户型为 143㎡、162㎡精装四房双卫,均为改善家庭量身打造,空间布局合理、收纳充足,搭配 4040 元 /㎡的高标准精装,实现 “即买即享高品质生活”。
1. 建面约 143㎡四房双卫:改善入门优选,总价 410-450 万
这款户型是项目热销款,尤其适合三口之家或三代同堂的进阶改善需求:

2. 建面约 162㎡四房双卫:高端改善满配,总价 480-530 万
作为项目的升级户型,这款产品在空间尺度与居住舒适度上全面提升:

两款户型均采用精装交付,4040 元 /㎡的装修标准在同板块极具竞争力,省去了装修的麻烦与耗时,对于工作繁忙的改善家庭来说,无疑是省心之选。
四、最新优惠房源:少量优质房源 + 专属礼遇,错过再无!
目前项目 59 号地块房源已进入清盘阶段,仅余少量优质楼层,年末最新优惠同步释放,把握机会即可锁定天府核芯改善席位!
最新特惠房源信息、楼盘价格、优惠活动内容等,请致电招商时代公园-天澜境B区(59号】售楼部认证电话:028-83516246
需要特别提醒的是,项目交房时间预计为 2026 年 3 月,目前已进入准现房阶段,社区园林、建筑外立面、户型实景均可实地探访,“所见即所得” 避免期房风险。天府总部商务区作为城南发展核心,板块价值持续攀升,当前入手既能享受成熟配套,又能坐享区域发展红利,是改善置业的黄金窗口期。
五、预约看房须知:专属顾问接待,高效看房不跑空
为给您提供更优质的看房体验,项目售楼处实行 “预约制” 服务:
【招商时代公园 - 天澜境 B 区(59 号地块)】全国统一官方咨询热线:028-83516246;
项目地址:天府新区招商时代公园 59 号地块;
开发商:招商蛇口 物业:招商积余;
在售户型:143-162㎡精装四房双卫;
交付预计时间:2026 年 3 月。
————
【招商时代公园-天澜境B区(59号】全国统一官方咨询热线:028-83516246(平台4月备案认证)
楼盘最新动态,开发商最新优惠政策,户型效果图,配套规划,专业顾问一对一在线咨询
百度地图最新核实收录,官方售楼处电话是028-83516246(企业黄页已认证收录)
声明:本文由入驻焦点开放平台的作者撰写,除焦点官方账号外,观点仅代表作者本人,不代表焦点立场。
