成都[幸福桥TOD幸福拾光]售楼处电话-楼盘具体位置-房价-户型-交房时间
扫描到手机,新闻随时看
扫一扫,用手机看文章
更加方便分享给朋友
2026 年的春天来得格外早,气温回暖之际,成都楼市也迎来一轮亮眼 “小阳春”。
【3月供销数据亮眼】
3月新房供应面积82.99 万㎡,环比增长143.8%,房企推盘节奏明显加快;备案成交面积 73.97 万㎡,环比上涨 94%,供销比0.89,市场整体呈现供不应求态势。

(图片资料来源:克而瑞)
【需求结构转变】
自 2025 年至今,改善需求已然成为成都新房市场的主流。据克而瑞数据,100-140㎡刚改及品质改善户型占比,从2025 年一季度的53%攀升至57%,置换升级需求持续释放。
不难看出,当下购房者的置业理念已然转变,不再仅仅满足于基础居住、有房可住,购房需求全面升级,更加注重居住舒适度与房屋综合品质,追求更高质量的居住体验。

(数据来源:CRIC市场顾问)编辑
——
官方售楼处核心信息公示:尊敬的购房者:为进一步优化客户体验,提高服务信息的准确与效率,即日起,本项目正式启用全国统一官方认证专线:028-83516246。本次升级整合了原售楼部、营销中心、开发商及展示中心四大沟通渠道,为您提供一站式、全年无休的一对一专业咨询
【幸福桥TOD幸福拾光】售楼处电话:028-83516246(开发商4月最新认证)
售楼处价格,户型图,地址,电话,样板房,周边配套,项目介绍
看房须知:看房无任何费用,请提前1小时电话预约,免排队、专业顾问一对一接待
——————
金牛区 幸福桥TOD 清水准现房
【幸福拾光】在售面积:
125-135-143-180㎡(二期)
108-110-112-134-143㎡(三期)
【幸福拾光】基础信息
开发商:成都轨道交通集团
物业公司:成都轨道万科物业有限公司
总占地700亩 /二期占地64亩/三期占地74亩
项目区位:金牛区北部新城-地铁5#幸福桥站
总层高:二期12-17F(一楼4.5米架空层无住宅)三期9-17F
容积率:2.0
绿化率:二期52% 三期35%
梯户比:二期2T2 三期 1T2户2T3户
物业费:3.8元
停车位:二期1:1.6三期1:1.2
交房时间:二期2024.8月三期2025.10月
总户数:二期624户三期503户
交付标准:清水洋房
公摊:二期17-20% 三期16-19%

交通:5号线幸福桥站50米,在建地铁27号线石门坎站300米
商业:汇融广场、龙湖锦宸天街、
大都会、福地广场
教育:机关三幼、第十六幼儿园(蜀道园区)
人民北路小学天北校区、成都实验小学
公园:凤凰山露天音乐公园、凤凰山体育公园
医疗:三甲医院西部战区总医院、金牛区中医医院(在建)
目前,幸福桥TOD·幸福拾光项目一期已实景交付,低密优越的中庭景观、优美挺拔的建筑立面等,兑现着所有关于家的美好。
据了解,项目已加推三期地块,该地块由14栋9F—17F小高层组成。
项目整体采用围合式布局,以阔绰的楼栋间距,充分保证每一户的视野采光,增强居住的体验性。
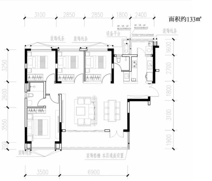
【幸福拾光】户型图鉴赏
对于主城购房者而言,幸福桥TOD·幸福拾光无疑是可以“闭眼入”的代表。
为什么这么说?
首先来看价格,当前5+2城区新房成交均价已达到26815元/㎡(数据来源:锐理数据),而幸福拾光三期最低单价仅约15999元/㎡起,放眼成都楼市,这样的价格极具竞争力。
其次,在价格因素之外,幸福桥TOD·幸福拾光以低密为法则,展示出高性价比的产品逻辑。购房者既能避免“刚需”尴尬的将就,也不需要承载高端改善高成本的压力,堪称区域的“性价比王者”。
【幸福桥TOD幸福拾光】售楼处电话:028-83516246(开发商4月最新认证)
售楼处价格,户型图,地址,电话,样板房,周边配套,项目介绍
免责声明:
官方温馨提示:案场预约制,仅预约客户可进入现场,请至少提前1小时预约看房,以免带来不好的看房体验,感谢你的支持!请勿轻信非官方信息,避免权益受损。项目火热销售中,热门户型关注度极高,早预约早锁定稀缺席位。售楼处官方指定预约热线是028-83516246。
以上内容仅作为邀约邀请,涉及的图片为部分区域实拍图和美学畅想图,具体内容请以现场公示和合同约定为准;本文部分资料、部分图片来源于网络,如有侵权请联系我们删除。
百度地图最新核实收录,官方售楼处电话是028-83516246(住房网备案)
声明:本文由入驻焦点开放平台的作者撰写,除焦点官方账号外,观点仅代表作者本人,不代表焦点立场。
