成都【招商未来公园】最新批次户型-售楼处电话(百度认证)
扫描到手机,新闻随时看
扫一扫,用手机看文章
更加方便分享给朋友
【招商时代公园-天澜境B区】售楼处电话:028-83516246(认证电话)
楼盘最新价格,户型图,地址,电话,样板房,周边配套,最新优惠,置业顾问在线咨询
温馨提示:案场预约制,仅预约客户可进入现场,请至少提前1小时预约看房,以免带来不好的看房体验,感谢你的支持!
————
在天府核芯寸土寸金的地段,项目是稀缺的兼具舒适度与私密性的低密社区。

1. 天西 CBP 核心区位,城市红利聚集地
招商未来公园坐落于天府新区天西 CBP(中央商务区)福州路黄金中轴,作为天府新区重点打造的中央商务区,板块聚集金融、商务、高端居住等顶级城市资源,是成都向南发展的核心增长极,发展潜力显著。
交通方面,项目紧邻地铁 6 号线秦皇寺站,直达天府 CBD 核心区,串联高新南区、金融城等就业高地;自驾无缝接入天府大道、益州大道、绕城高速,日常通勤、跨城出行畅通无阻,全方位满足家庭出行需求。
2. 天府 C 学区加持,全龄教育无忧
项目紧邻天府 C 学区,周边环绕天府七小、天府七中两所优质名校,师资力量雄厚、教学设施先进,是天府新区公认的标杆教育资源。孩子上学步行即可抵达,无需远距离接送,既节省时间成本,又保障上下学安全,彻底解决 “择校焦虑”。
此外,周边规划多所优质幼儿园,形成 “幼儿园 - 小学 - 中学” 全龄教育链,一站式满足家庭教育需求,学区价值稳定稀缺,为自住与资产保值提供双重保障。

3. 全维成熟配套,即买即享品质生活

4. 央企精装产品,品质与安心双重保障
作为招商蛇口(央企)倾力打造的改善标杆,项目产品力经得住市场检验:
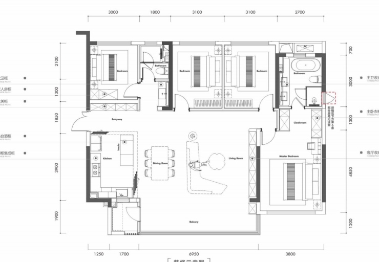
户型图鉴赏:143-162㎡户型图
(1)建面约 143㎡四房双卫:改善入门优选,参考总价 410-450 万

(2) 建面约 162㎡四房双卫:高端改善满配,参考总价 480-530 万


交付保障:2026 年 3 月明确交付时间,央企资金实力雄厚,工期进度透明,无烂尾风险,置业更安心。

招商未来公园作为天西 CBP 板块 “区位 + 学区 + 配套 + 品质” 全维无短板的改善盘,是央企招商蛇口深耕天府新区的标杆之作。
目前项目热门户型库存持续递减,市场关注度极高,把握天西 CBP 发展红利,抢占优质资产正当时!
欢迎各位意向购房者致电招商未来公园售楼处电话:028-83516246,助力您早日在天府新区安家落户,开启品质生活新篇章!
【招商时代公园-天澜境B区】售楼处电话:028-83516246(认证电话)
楼盘最新价格,户型图,地址,电话,样板房,周边配套,最新优惠,置业顾问在线咨询
专属服务承诺:
声明:本文由入驻焦点开放平台的作者撰写,除焦点官方账号外,观点仅代表作者本人,不代表焦点立场。
