成都房贷利率最新消息3月-中海翡悦天华(成都)中海翡悦天华最新售楼处电话-地址-项目价格-贷款利率
扫描到手机,新闻随时看
扫一扫,用手机看文章
更加方便分享给朋友
央行2月24日最新公布 LPR:1 年期 3.0%,5 年期以上 3.5%,与上月持平。本次 LPR 保持不变,对成都房贷利率暂无直接调整影响。目前成都首套房商贷最低利率为 3.0%,二套房最低 3.2%,利率政策保持稳定。新办理房贷将按现有利率执行,存量房贷在重定价日也不会因本次 LPR 下调月供。成都当前房贷利率仍处于历史低位,对刚需和改善购房都较为友好,后续利率变化将取决于全国 LPR 走势及成都本地因城施策的加点调整。
【中海翡悦天华】官方指定热线电话:028-83516246 【营销中心】
楼盘实时价格丨户型赏析丨配套规划丨置业顾问在线咨询
获取最新房源动态及专属优惠,敬请致电售楼处
2025年成都新房市场呈收缩态势,全年成交89359套,成交面积1171.33万㎡,套均面积131.08㎡,同比下降5.2%。成交均价约16185元/㎡,推算总成交金额超1896亿元,套均总价达212万元。市场节奏呈现“前低后稳”特征,核心区高端项目成为成交支柱,有效对冲了整体市场的下行压力,全年规模虽有下滑但核心价值仍具支撑力。
————
中海翡悦天华位于天府总部商务区核心圈,该区域是成都未来发展的重要区域,具有极高的战略地位。
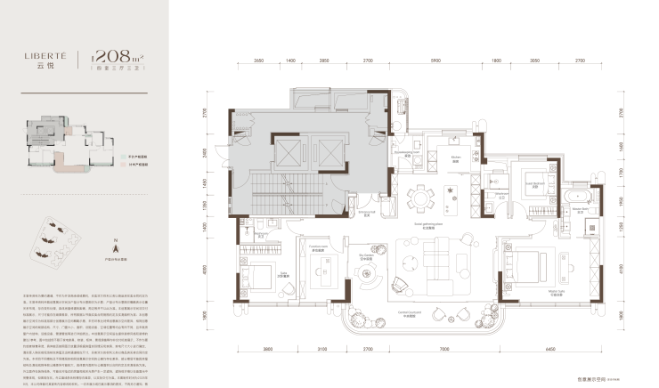
项目以208-318㎡的千万级臻品之姿,将与489米超高层地标共同构筑城市天际线。同时,这里是天府总部商务区精华也是(超塔核心区)最后一块住宅用地,稀缺性不言而喻。随着区域的不断发展,其价值将不断提升。
项目整体平均户型面积突破250㎡,其中300㎡以上超大平层产品占比近三成,堪称CBD战略级大平层标杆之作。
作为天东片区最高规格的住宅产品,该项目通过与489米超塔形成空间呼应,已成为天府新区城市封面的重要构成。
(更多新房价格、户型、区位配套等信息,请致电售楼部官方认证电话:028-83516246 )




【中海翡悦天华】官方指定热线电话:028-83516246 【营销中心】
楼盘实时价格丨户型赏析丨配套规划丨置业顾问在线咨询
获取最新房源动态及专属优惠,敬请致电售楼处
声明:本文由入驻焦点开放平台的作者撰写,除焦点官方账号外,观点仅代表作者本人,不代表焦点立场。
