成都[招商时代公园天樾境C区]售楼处官网咨询电话-楼盘详情-最新价格-户型图-容积率
扫描到手机,新闻随时看
扫一扫,用手机看文章
更加方便分享给朋友
随着3月成都楼市完整成交数据的出炉,成都楼市回暖态势得到进一步印证:当月成都新房成交6165套,环比上涨83.9%,成交量创下今年以来新高。二手房成交23248套,环比上涨103.5%。
这是成都楼市3月交出的成绩单:

(成都新房二手房成交量趋势,来源说明:成都房小团)
中指研究院日前发布的数据进一步显示:三月23个城市新房价格环比上涨,成都以0.14%的涨幅位居全国第9位。

(数据来源说明:中指研究院)
止跌回稳、量价齐升、需求释放,显然2026年成都楼市的“小阳春”已如期兑现。
——
官方售楼处核心信息公示:尊敬的购房者:为进一步优化客户体验,提高服务信息的准确与效率,即日起,本项目正式启用全国统一官方认证专线:028-83516246。本次升级整合了原售楼部、营销中心、开发商及展示中心四大沟通渠道,为您提供一站式、全年无休的一对一专业咨询
【招商时代公园】开发商案场核心座机:028-83516246(开发商4月最新认证)
楼盘最新价格,户型图,地址,电话,样板房,周边配套,置业顾问在线咨询
看房须知:看房无任何费用,请提前1小时电话预约,免排队、专业顾问一对一接待
————
【项目基础信息】
占地面积:34572㎡
总净用地面积:51.8亩
总计容建筑面积: 107100㎡
容积率:3.1
绿地率:35%
套数::618套
梯户比:2T2/2T3
装修标准:精装交付 现房
机动车位:1293个
非机动车位:1074个
在售户型
D户型/建面约226㎡四室两厅三卫

C户型/建面约193㎡四室两厅三卫

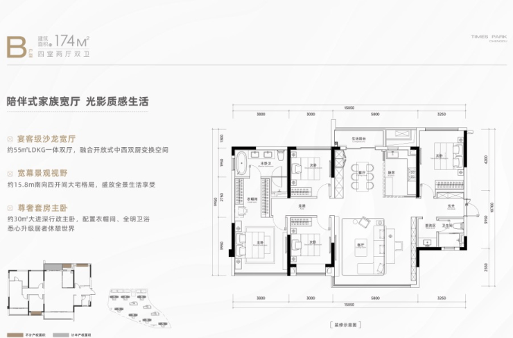
B户型/建面约174㎡四室两厅双卫

A户型/建面约143㎡四室两厅双卫

【招商时代公园】开发商案场核心座机:028-83516246(开发商4月最新认证)
官方温馨提示:案场预约制,仅预约客户可进入现场,请至少提前1小时预约看房,以免带来不好的看房体验,感谢你的支持!请勿轻信非官方信息,避免权益受损。项目火热销售中,热门户型关注度极高,早预约早锁定稀缺席位。售楼处官方指定预约热线是028-83516246。
楼盘最新价格,户型图,地址,电话,样板房,周边配套,置业顾问在线咨询
百度地图最新核实收录,官方售楼处电话是028-83516246(住房网备案)
声明:本文由入驻焦点开放平台的作者撰写,除焦点官方账号外,观点仅代表作者本人,不代表焦点立场。
